Bilocale libero con balcone esposto a sud - W6

Gaiscentro paese
345.000 €

informazioni generali

Riferimento:
5293
Contratto:
acquisto
Proprietà:
appartamento
Piano:
1
Totale piani:
1
ascensore:
solo per residenti:
Prezzo di acquisto:
345.000,00 €
Provvigione più IVA:
3%

Superfici e caratteristiche

Superficie abitabile:
44,17 m²
Superficie balconi/terrazze:
15,63 m²
Superficie cantina:
7,00 m²
Superficie di vendita:
65,83 m²
Stanze:
2
Camere da letto:
1
Bagni:
1
Balconi:
1
Posti auto:
1

Efficenza energetica

anno di costruzione:
2025
stato dell'immobile:
nuovo
fonte di energia:
teleriscaldamento
Riscaldamento:
riscaldamento a pavimento
Descrizione:
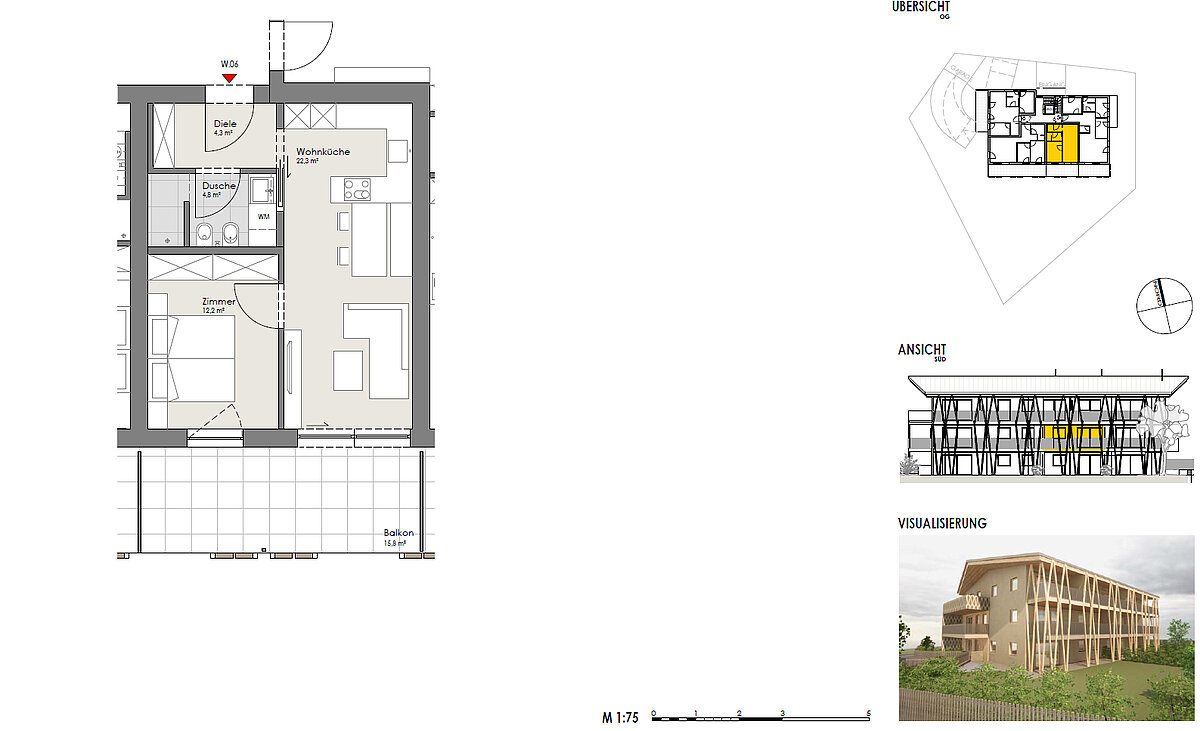
Bilocale con balcone esposto a sud nel nuovo progetto "Franz" a Gais – W6

Questo appartamento al primo piano è composto da un ingresso, una zona giorno con cucina, una camera da letto, un bagno e un bel balcone esposto a sud. Una cantina è inclusa nel prezzo; posti auto in garage possono essere acquistati con sovrapprezzo.

L’appartamento è libero (non soggetto a vincoli) e quindi adatto anche come seconda casa, casa vacanze o investimento da mettere a reddito.

A Gais nasce il nuovo progetto edilizio "Franz", composto da 12 unità abitative. La posizione centrale convince per l’eccellente infrastruttura: negozi, scuola, asilo, strutture sportive e ricreative e un parco giochi si trovano direttamente nelle vicinanze.

Gli acquirenti hanno la possibilità di personalizzare la disposizione interna (se staticamente fattibile) e di scegliere materiali e finiture secondo i propri desideri.

Inizio lavori: 2025
Consegna: entro giugno 2027
CasaClima A-Nature
Costruzione chiavi in mano di alta qualità
Posizione centrale nel centro del paese

Persona di contatto

Agenzia:
Immobilien Niederkofler GmbH/SRL
Nome:
Dr. Lukas Pörnbacher 
Via:
Galileo Galilei 6
Luogo:
39031 Bruneck
Telefono:
00393425116923
Mail:
lukas@immobil-niederkofler.it
Kontaktperson
Contatta l'agente