Bilocale con giardino (C)

DobbiacoDobbiaco
420.000 €

informazioni generali

Riferimento:
5151
Contratto:
acquisto
Proprietà:
appartamento
ascensore:
solo per residenti:
no
Prezzo di acquisto:
420.000,00 €
Spese condominiali al mese:
90,00 €
Provvigione più IVA:
3%

Superfici e caratteristiche

Superficie abitabile:
38,00 m²
Superficie balconi/terrazze:
48,00 m²
Superficie giardino:
140,00 m²
Superficie cantina:
7,00 m²
Superficie di vendita:
87,00 m²
Stanze:
2
Camere da letto:
1
Bagni:
1
Terrazze:
1
Posti auto:
1

Efficenza energetica

anno di costruzione:
2025
stato dell'immobile:
nuovo
fonte di energia:
teleriscaldamento
Riscaldamento:
riscaldamento a pavimento
classe energetica:
A+
Descrizione:
Benvenuti nella vostra nuova casa! Questo affascinante appartamento al piano terra nel comune di Dobbiaco offre la perfetta combinazione di comfort moderno e praticità.

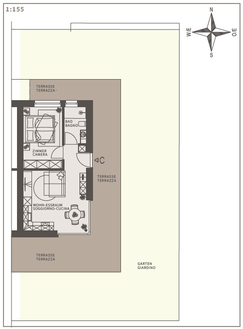
L'appartamento si trova al piano terra di un nuovo progetto edilizio ed è composto da un ingresso, un soggiorno con angolo cottura, una camera da letto e un'ampia terrazza con giardino. Un locale cantina offre ulteriore spazio di archiviazione. I garage possono essere acquistati con un costo aggiuntivo di 35.000 euro + IVA.

Non perdete l'opportunità di fare di questo affascinante appartamento al piano terra la vostra casa. Non solo acquisterete un immobile di prima classe, ma anche un pezzo di qualità della vita nella pittoresca Dobbiaco.

L'appartamento è libero, non convenzionato, e può quindi essere utilizzato anche come seconda casa o casa per le vacanze.
Posizione:
Il comune di Dobbiaco si trova in Alta Pusteria, in Alto Adige. La "porta delle Dolomiti" confina con il Parco Naturale delle Tre Cime nelle Dolomiti di Sesto e Fanes-Sennes-Braies e ospita due importanti specchi d'acqua, il Lago di Dobbiaco e il Lago di Dürrensee. Il comune di Dobbiaco comprende non solo Dobbiaco vecchia e nuova, ma anche i villaggi di Aufkirchen, Wahlen e la valle Silvestertal.
Tra le attrazioni, il leggendario castello di Herbstenburg e le 5 cappelle della Passione lungo la Maximilianstraße, che fanno parte della più antica Via Crucis del Tirolo. Un'escursione lungo la linea ferroviaria dismessa nella valle dell'Höhlenstein, una passeggiata lungo il sentiero naturalistico Toblacher See o un tour lungo il sentiero Höhenweg vi faranno scoprire il lato più bello di Dobbiaco.

Persona di contatto

Agenzia:
Immobilien Niederkofler GmbH
Nome:
André Benedict Niederkofler 
Via:
Galileo Galilei 6
Luogo:
39031 Bruneck
Telefono:
00390474410400
Mail:
info@immobil-niederkofler.it
Website:
www.immobil-niederkofler.it
Contatta l'agente