Appartamento quadrilocale per famiglie con giardino

LanaLana
580.000 €

informazioni generali

Riferimento:
RM723
Contratto:
acquisto
Proprietà:
appartamento
ascensore:
solo per residenti:
no
Prezzo di acquisto:
580.000,00 €
Provvigione più IVA:
3% vom Kaufpreis

Superfici e caratteristiche

Superficie abitabile:
96,00 m²
Superficie balconi/terrazze:
35,00 m²
Superficie giardino:
52,00 m²
Superficie cantina:
8,00 m²
Superficie totale:
140,00 m²
Stanze:
4
Camere da letto:
3
Bagni:
1
WC separati:
1
Posti auto:
2

Efficenza energetica

anno di costruzione:
1997
fonte di energia:
gas
Riscaldamento:
riscaldamento a pavimento
classe energetica:
F
Descrizione:
A pochi passi dal centro di Lana, ma in posizione assolutamente tranquilla, si trova questo attraente appartamento con giardino. L’immobile offre circa 100 m² di superficie abitabile netta e un curato giardino con una palma che invita al relax. L’appartamento è in buone condizioni e può essere consegnato immediatamente, completamente arredato su richiesta.
Completano l’offerta due ampie cantine e due garage, disponibili ciascuno al prezzo di 25.000 €.


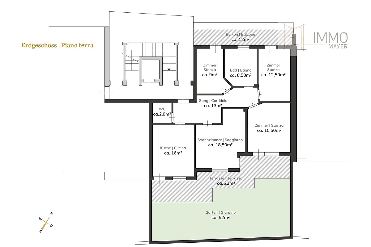
Superficie commerciale: ca. 140 m²
Superficie calpestabile: ca. 96 m²
Piano: piano terra
Esposizione: sud
Balcone: ca. 12 m²
Terrazza: ca. 23 m²
Giardino: ca. 52 m²
Cantina: 2 x ca. 4 m²
Ascensore: si
Garage: à 25.000 €
Riscaldamento: gas
Spese condominiali: da definire
Convenzionato: no

Sul nostro sito web troverete ulteriori informazioni, come ad esempio un tour a 360° appositamente creato. Oppure fatevelo spedire facendo una richiesta diretta tramite questo portale.

Tutti i dati riportati sono indicativi.

Per ulteriori informazioni o un sopraluogo informativo siamo a Vostra disposizione.
IMMO MAYER vGmbH | srls | Romstraße | via Roma 102 | 39012 Meran | o | +39 0473 421778 | info@immo-mayer.com | www.immo-mayer.com

Persona di contatto

Agenzia:
IMMO MAYER
Nome:
Mati Mayer 
Via:
Romstraße | Via Roma 102
Luogo:
39012 Meran | o
Telefono:
00390473421778
Mail:
info@immo-mayer.com
Website:
www.immo-mayer.com/
Contatta l'agente

documenti