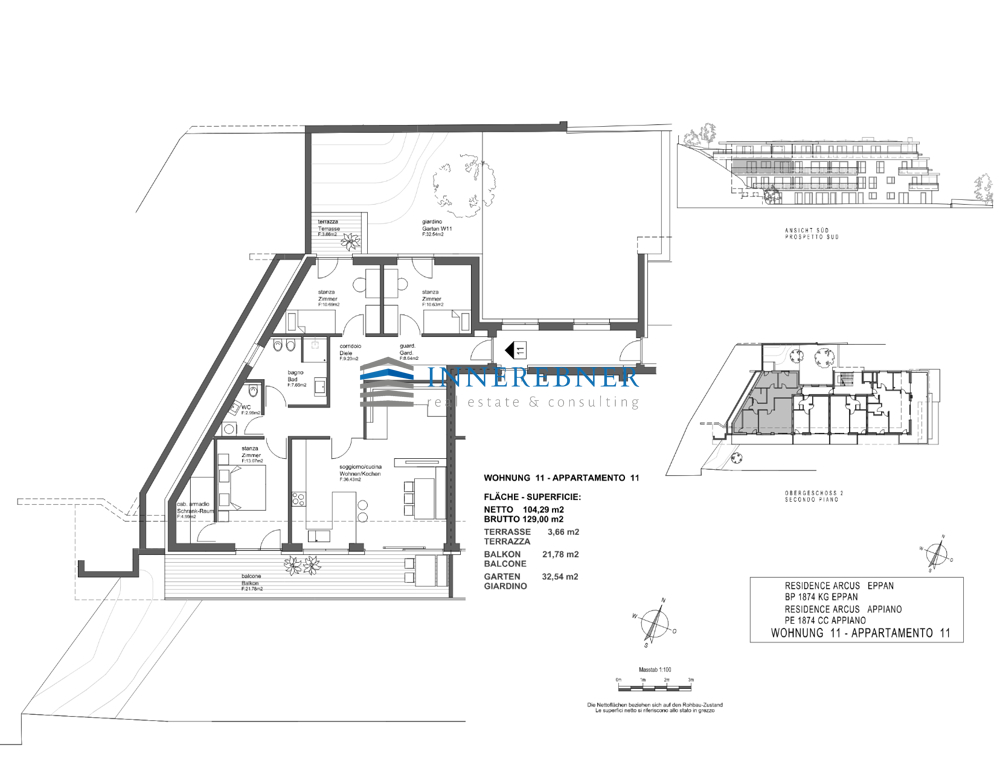
Appartamento 11: Progetto di nuova costruzione Residence ARCUS ad Appiano

Appiano s.s.d.v.Appiano s.s.d.v.
Su richiesta

informazioni generali

Riferimento:
583_8
Contratto:
acquisto
Proprietà:
appartamento
ascensore:
no
solo per residenti:
no

Superfici e caratteristiche

Superficie abitabile:
104,63 m²
Superficie utile:
139,56 m²
Stanze:
4
Camere da letto:
3
Bagni:
2
Terrazze:
1

Efficenza energetica

anno di costruzione:
2025
stato dell'immobile:
nuovo
classe energetica:
A+
Descrizione:
Appartamento 11 - Secondo Piano

Questo spazioso appartamento offre 3 camere da letto, 1 bagno, un WC diurno, una cucina/soggiorno a pianta aperta e un balcone. L'appartamento dispone anche di una piccola terrazza e di un giardino privato, che offre ulteriore spazio per le attività ricreative all'aperto. La combinazione di stanze luminose e di un bellissimo spazio esterno rende questo appartamento particolarmente interessante per famiglie o coppie che cercano molto spazio sia all'interno che all'esterno.

Ogni appartamento è dotato di una cantina. Inoltre, è possibile acquistare posti auto e/o un box garage.
Posizione:
Il centro di San Michele è raggiungibile a piedi in pochi minuti, mentre la città di Bolzano e le località circostanti sono facilmente raggiungibili in auto o con i mezzi pubblici.
Descrizione dell'attrezzatura:
Gli appartamenti, luminosi e spaziosi, vantano ampie terrazze e/o balconi. Il design raffinato e la realizzazione di alta qualità offrono il massimo del comfort e una elevata qualità della vita.

Il complesso residenziale verrà realizzato secondo lo standard Klimahaus A-Nature e sarà dotato di un innovativo concetto energetico, comprendente un impianto fotovoltaico e una pompa di calore.

Persona di contatto

Agenzia:
Immobilien Innerebner
Via:
Johann Georg Plazer 50
Luogo:
39057 Eppan/Appiano
Telefono:
00390471379501
Mail:
info@immobilien-innerebner.com
Website:
www.immobilien-innerebner.com
Contatta l'agente