Affittasi ampio appartamento in centro

Bolzanocentro città
1.800 €

informazioni generali

Riferimento:
2054
Contratto:
affitto
Proprietà:
appartamento
Piano:
2
Totale piani:
2
ascensore:
solo per residenti:
no
affitto netto:
1.800,00 €
Spese condominiali al mese:
350,00 €

Superfici e caratteristiche

Superficie di vendita:
149,00 m²
Stanze:
6
Camere da letto:
3
Bagni:
2
Balconi:
2

Efficenza energetica

fonte di energia:
gas
Descrizione:
Le richieste devono essere inviate esclusivamente via mail:
Saranno prese in considerazione solo le richieste che hanno tutte le risposte date in modo corretto vedasi sotto:
- Numero e nome completo dei membri della famiglia
- Da quando ha bisogno dell’appartamento e per quanto tempo
- Numero e tipo di animali domestici
- luogo di lavoro (datore di lavoro e tipo di contratto)

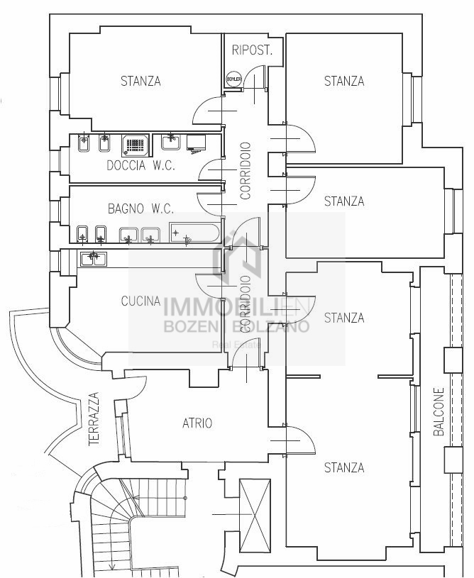
Questo ampio pentalocale con cucina separata si trova nel centro di Bolzano, al secondo piano di un edifico con la classe energetica “G”. L’appartamento ha una superficie di ca. 149 mq ed è suddiviso in ingresso con corridoio, ampio soggiorno, sala pranzo, cucina abitabile, 3 camere da letto, 2 bagni, ripostiglio e 2 balconi. L’immobile non è arredato (senza cucina). Riscaldamento è compreso nelle spese condominiali, acqua calda è autonomo.

Persona di contatto

Agenzia:
Immobilien Bozen GmbH
Nome:
Heidi Scheiflinger 
Via:
Südtiroler Straße 19
Luogo:
39100 Bozen
Telefono:
00390471052299
Mail:
info@immobil-bozen.com
Website:
www.immobil-bozen.com
Contatta l'agente