Accogliente bilocale con cantina e garage

Campo TuresMolini di Tures
850 €

informazioni generali

Riferimento:
4792
Contratto:
affitto
Proprietà:
appartamento
Piano:
2
Totale piani:
2
ascensore:
arredato:
parzialmente
solo per residenti:
no
affitto netto:
850,00 €
Provvigione più IVA:
10% der Jahresmiete

Superfici e caratteristiche

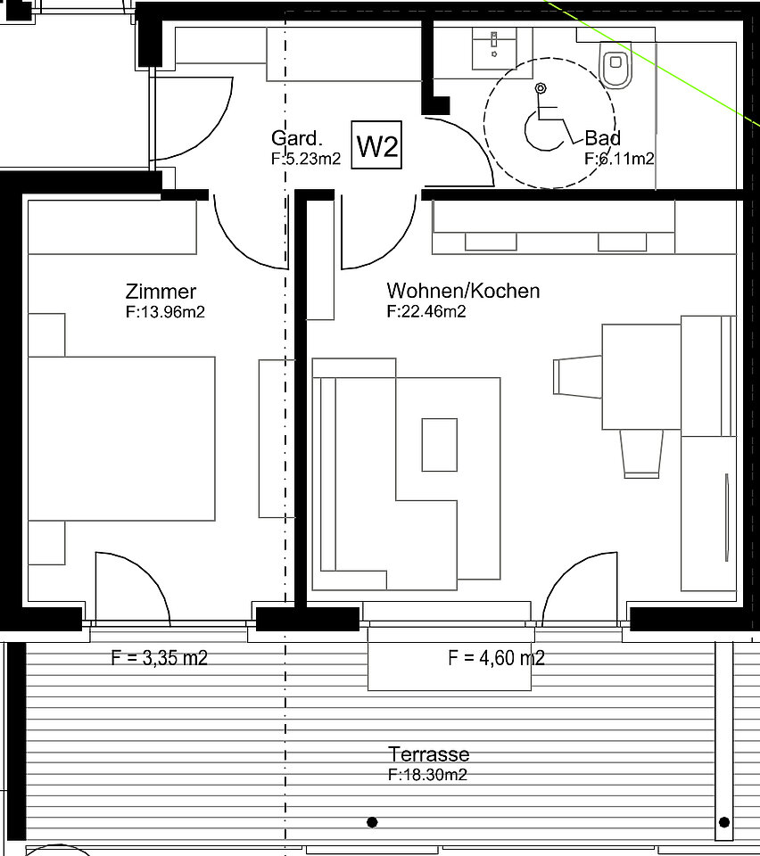
Superficie abitabile:
47,76 m²
Superficie balconi/terrazze:
18,30 m²
Superficie cantina:
19,08 m²
Superficie di vendita:
70,91 m²
Stanze:
2
Camere da letto:
1
Bagni:
1
Terrazze:
1
Posti auto:
1

Efficenza energetica

anno di costruzione:
2022
stato dell'immobile:
come nuovo
fonte di energia:
pellet
Riscaldamento:
riscaldamento a pavimento
classe energetica:
A+
consumo di energia:
50.00 kWh/(m²*a)
Descrizione:
Bilocale pari al nuovo con cucina inclusa, situato in edificio curato con ascensore, in affitto. L’appartamento dispone di un bel balcone, una cantina spaziosa e un posto auto in garage.

Persona di contatto

Agenzia:
Immobilien Niederkofler GmbH
Nome:
Fabian Mair unter der Eggen 
Via:
Galileo Galilei 6
Luogo:
39031 Bruneck
Telefono:
0039335440891
Mail:
fabian@immobil-niederkofler.it
Kontaktperson
Contatta l'agente