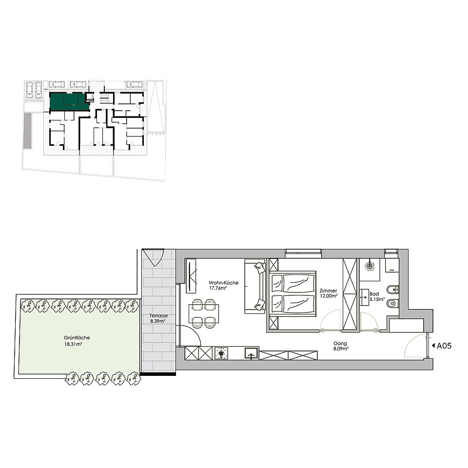
A05 - Bilocale con terrazza e giardino

Campo Turescentro paese
Su richiesta

informazioni generali

Riferimento:
BK13459_5
Contratto:
acquisto
Proprietà:
appartamento
ascensore:
solo per residenti:
no
Provvigione più IVA:
3%

Superfici e caratteristiche

Superficie abitabile:
43,00 m²
Superficie balconi/terrazze:
8,39 m²
Superficie giardino:
18,31 m²
Superficie cantina:
4,06 m²
Superficie di vendita:
61,47 m²
Stanze:
2
Camere da letto:
1
Bagni:
1
Terrazze:
1

Efficenza energetica

anno di costruzione:
2026
fonte di energia:
teleriscaldamento
Riscaldamento:
riscaldamento a pavimento
classe energetica:
A+
Descrizione:
Bilocale convenzionato composto da cucina abitabile, una camera da letto, bagno, terrazza, giardino e cantina. Il complesso residenziale Nora offre soluzioni abitative moderne in una posizione soleggiata a Campo Tures. Sono in fase di realizzazione 13 appartamenti di diverse metrature con una disposizione degli spazi ben studiata, realizzati con materiali di alta qualità. L‘edificio sarà costruito secondo i criteri di efficienza energetica della Casa Clima A-Nature. Il complesso residenziale è dotato di un garage sotterraneo che offre ai residenti comodi posti auto. La posizione centrale a Campo Tures consente un buon collegamento con i mezzi pubblici e una rapida raggiungibilità di negozi, scuole e strutture ricreative.

Persona di contatto

Agenzia:
Castellanum Srl
Nome:
Castellanum Bruneck - Brunico 
Via:
Via Michael Pacher 5
Luogo:
39031 Brunico
Telefono:
00390474862621
Mail:
bruneck@castellanum.it
Website:
www.castellanum.it
Contatta l'agente