Commercial property in the industrial area of Brunico

Brunicoindustrial area
on request

general

object number external:
3726
marketing method:
purchase
property:
Warehouse (industrial hall)
elevator:
no
broker's fee plus VAT:
3%

Areas and amenities

living space:
82,04 m²
Office space:
331,22 m²
Floor space:
736,57 m²
cellar space:
505,91 m²
Storage space:
323,28 m²
Sales space:
1.016,29 m²
Total size of site:
970,00 m²
Number of sep. bathrooms:
6
number of parking spaces:
7

Energetic efficiency

construction year:
2001
energy source:
pellet
heating:
Central heating
energy class:
D
Description:
The property is a highly attractive commercial building comprising warehouses, offices, and a staff apartment. The building was constructed in 2001, expanded in 2015, and is in excellent condition.

On the ground floor, there are two warehouse halls with a total area of 323 m². The halls have a height of 6.60 m, are equipped with two electric sectional doors, are accessible at ground level, and are partially heated.
The ground-floor office (165 m²) is in very good condition, partly furnished, and includes a complete electrical system with data cabling, lighting, acoustic ceiling, fitted kitchen, and two bathrooms with showers.

On the first floor, there is another office space of 165 m² that is still to be completed. On the second floor, there is a modern staff apartment with a living room and kitchen, two bedrooms, a bathroom, and a rooftop terrace.

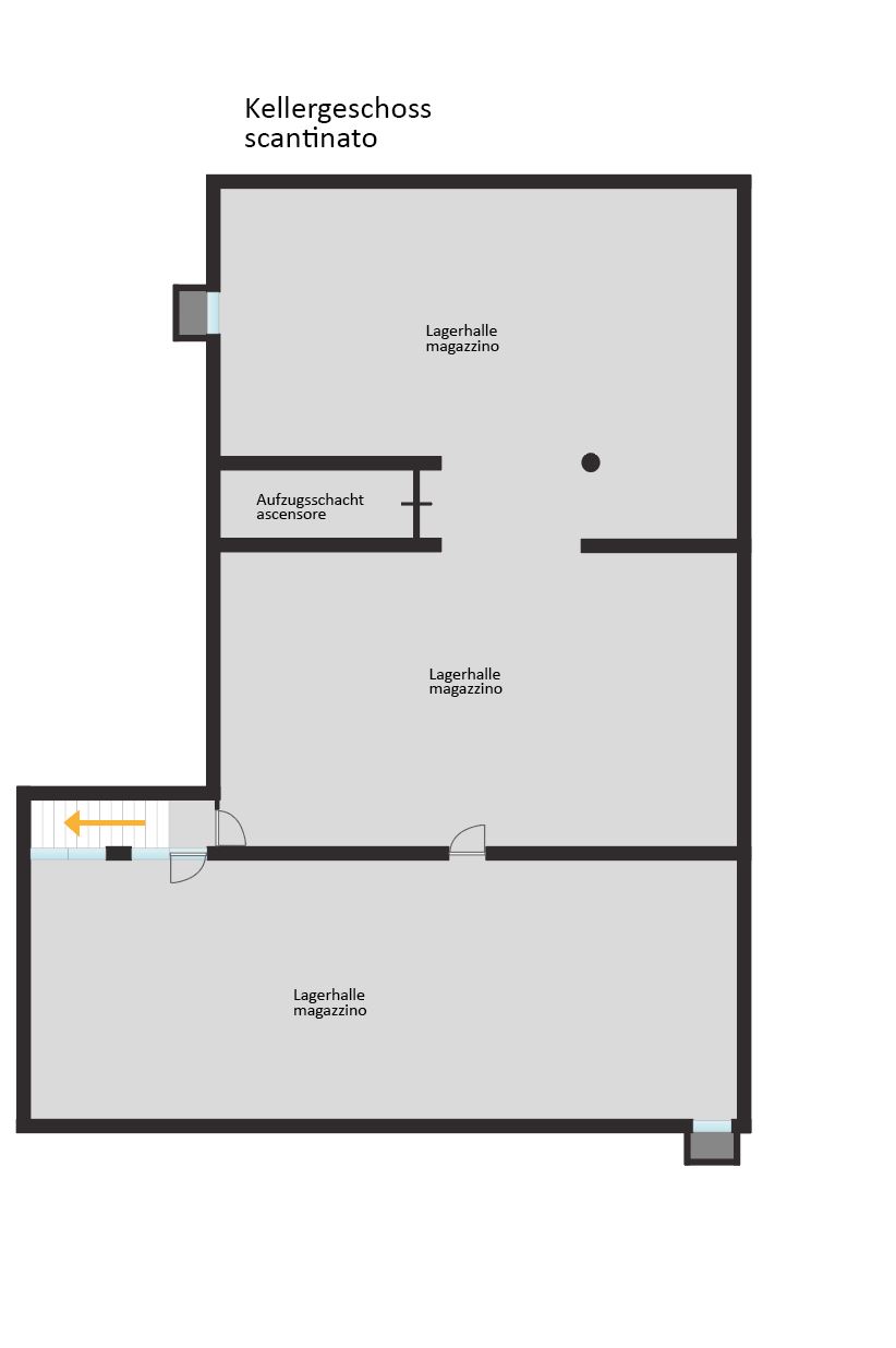
The entire building has a basement with an additional storage area of 506 m², a height of 3.30 m, accessible via an elevator shaft or external staircase. There is also the possibility to connect the basement through a garage ramp, allowing access for cars or delivery vehicles.
In front of the building, several parking spaces are available for employees and customers.

The sanitary and electrical systems are up to modern standards. The property is equipped with an alarm system with infrared sensors and a video surveillance system with indoor and outdoor cameras. Heating is provided by a pellet system with its own storage tank. All windows are double-glazed.
Location:
The property is located in an easily accessible position in the industrial area of Brunico West, Brunico, in the province of South Tyrol, Italy. The infrastructural connection is excellent, with short distances to public transport and the motorway — a significant advantage for both clients and staff. In the immediate vicinity, there are also several restaurants and shops, ensuring a high quality of life and a pleasant working environment.
The vibrant local economy combined with the impressive surrounding landscape makes this commercial property an attractive location for businesses.

Contact person

Company:
Immobilien Niederkofler GmbH/SRL
Name:
Dr. Lukas Pörnbacher 
Street:
Galileo Galilei 6
Place:
39031 Bruneck
Phone:
00393425116923
Email:
lukas@immobil-niederkofler.it
Kontaktperson
Direct message