Zweifamilienhaus im rohbau mit grosszÜgigem grundstÜck in ruhiger lage

AlgundForst
auf Anfrage

allgemeine Informationen

Immobiliennr.:
1983
Vermarktungsart:
Kauf
Immobilienart:
Haus
Fahrstuhl:
Nein
nur für Ansässige:
Nein
Provision zzgl. MwSt.:
3% + MwSt.

Flächen und Ausstattung

Grundstücksfläche:
957,00 m²

Energieeffizienz

Zustand:
Rohbau
Objektbeschreibung:
Wohnhaus mit zwei Wohneinheiten in Rohbauzustand – in ruhiger Lage von Forst/Algund

Zum Verkauf steht ein Wohnhaus mit zwei eigenständigen Wohneinheiten in der Fraktion Forst, Gemeinde Algund, umgeben von weitläufigem landwirtschaftlichem Grün. Die Immobilie bietet ein hohes Maß an Privatsphäre und Raum zur individuellen Gestaltung.

Die Grundstücksfläche beträgt 957 m² und ermöglicht die Anlage eines großzügigen Gartens oder Parkbereichs rund um das Haus. Das Stadtzentrum von Meran ist in wenigen Minuten erreichbar, ebenso wie das Dorfzentrum von Algund über den nahegelegenen Fahrradweg entlang der Etsch, der eine schnelle und sichere Anbindung garantiert.

Raumaufteilung:
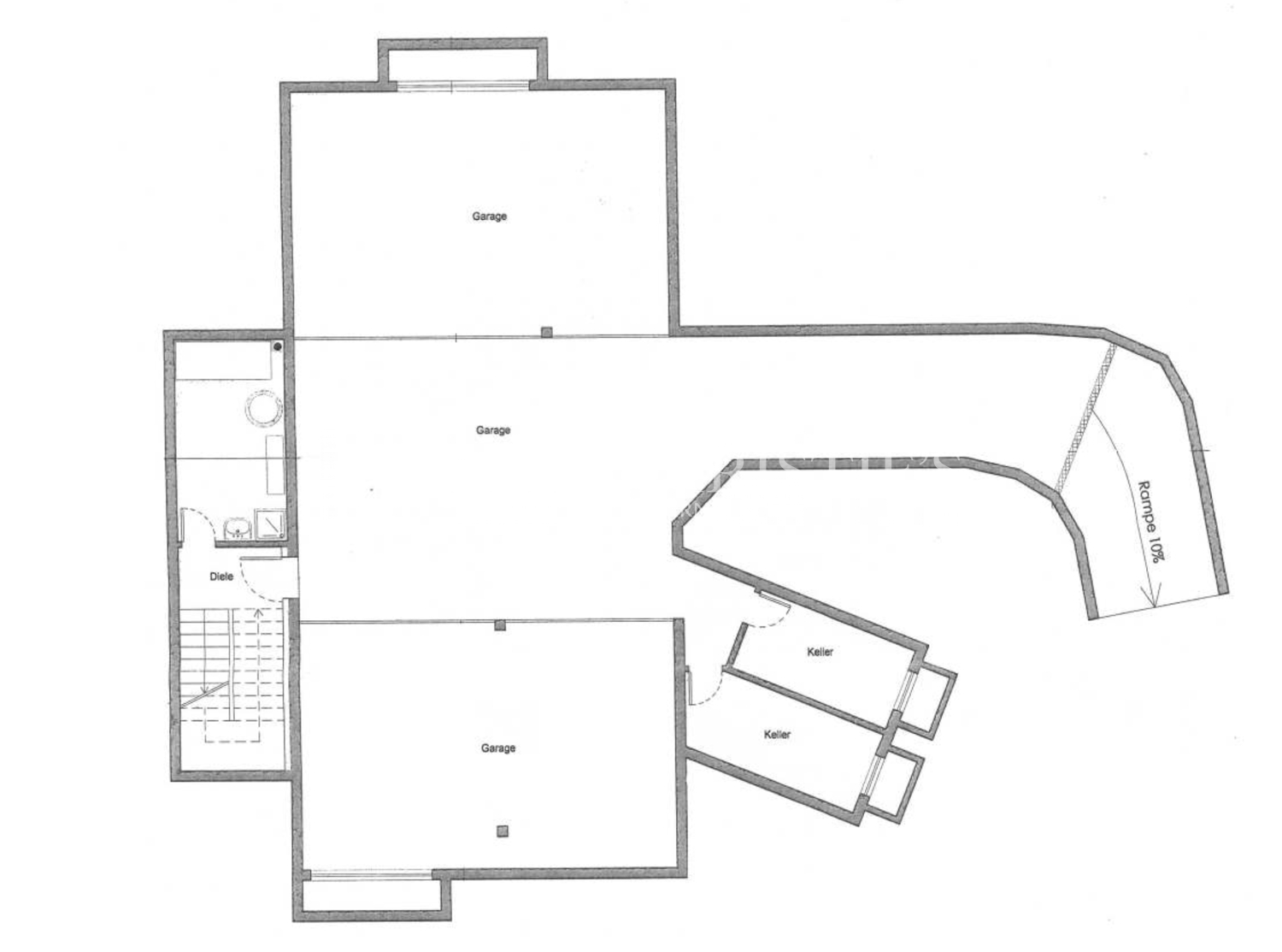
- Kellergeschoss: Großzügige Tiefgarage mit mehreren Stellplätzen, zwei Kellerabteile
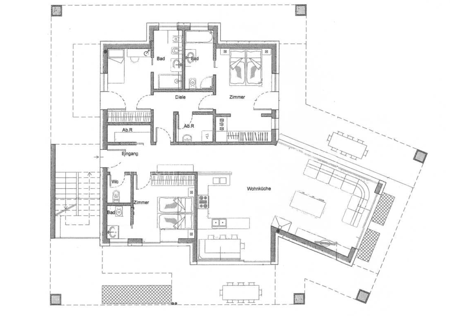
- Erdgeschoss: Wohneinheit mit Eingangsbereich, Wohnküche, Tages-WC, Diele, zwei Abstellräumen sowie drei Schlafzimmern – jeweils mit eigenem Bad und Zugang zu den Terrassen
- Obergeschoss: Wohneinheit mit identischem Grundriss – Eingangsbereich, Wohnküche, Tages-WC, Diele, zwei Abstellräume, drei Schlafzimmer mit drei Bädern und Terrassen

Die Rohbauarbeiten sind abgeschlossen, inklusive Außenputz. Das Dach wurde isoliert und ist bereits fertiggestellt.

Diese Immobilie bietet eine hervorragende Gelegenheit, ein Mehrfamilienhaus oder ein Wohnprojekt nach individuellen Vorstellungen zu realisieren – in ruhiger, sonniger Lage mit idealer Nähe zu Meran und Algund.
Lage:
Die Fraktion Forst, ein idyllischer Ortsteil der Gemeinde Algund, liegt nur wenige Minuten von Meran entfernt und ist umgeben von weitläufigen Obstwiesen und Weinbergen. Die Lage besticht durch ihre Ruhe und Sonnigkeit sowie den beeindruckenden Panoramablick auf den Ifinger und die umliegende Bergwelt. Dank der Nähe zu Algund und Meran vereint Forst ländliche Idylle mit bester Anbindung und urbanem Komfort – ein idealer Ort zum Wohnen und Wohlfühlen.
Sonstiges:
Alle Angaben sind indikativ und können jederzeit Abänderungen unterliegen.

Kontaktperson

Firma:
Benedetti Real Service | Christie's International Real Estate
Name:
Sophia Biasi 
Straße:
Via Leonardo da Vinci Strasse 9
Ort:
39012 Merano
Telefon:
00390473236613
Faxnummer:
00390473231296
E-Mail:
bs@irs-benedetti.com
Website:
www.irs-benedetti.com
Mitteilung senden