Zentral gelegenes Restaurant / Pizzeria zu verkaufen

Kaltern a.d.W.Kaltern a.d.W.
auf Anfrage

allgemeine Informationen

Immobiliennr.:
0937
Vermarktungsart:
Kauf
Immobilienart:
Gastgewerbe (Restaurant)
Fahrstuhl:
Nein
Möblierung:
Voll

Flächen und Ausstattung

Nutzfläche:
340,00 m²
Verkaufsfläche:
410,00 m²
Badezimmer:
5
Terrassen:
1
Stellplätze:
17

Energieeffizienz

Zustand:
Teil/Vollsaniert
Energiequelle:
Gas
Heizung:
Zentralheizung Fußbodenheizung
Energieklasse:
G
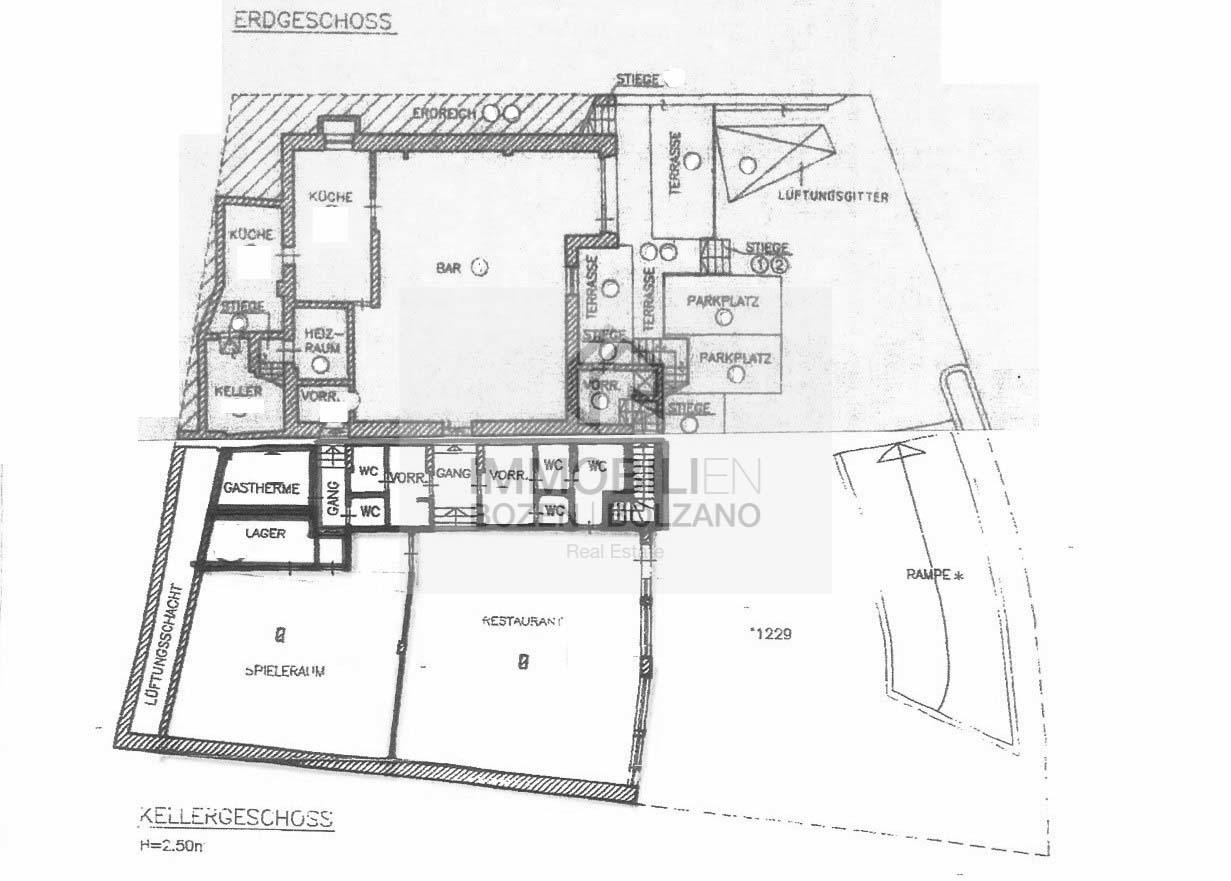
Objektbeschreibung:
Das Lokal befindet sich in zentraler Lage und ist sowohl zu Fuß, als auch mit dem Auto gut erreichbar.
Das Restaurant befindet sich im Erdgeschoss una hat eine Fläche von ca. 410 m². Es besteht aus einem Terassenbereich, einer Bartheke, einem großen Speisesaal mit ca. 150 Sitzplätzen, einer Küche, einem Pizzaofen und mehreren WC’s. Zudem gehört auch eine Tiefgarage mit ca. 573 m² dazu. In dieser befindet sich ca. 17 Parkplätze.
Es wird autonom mit Gas durch Fußbodenheizung geheizt.

Kontaktperson

Firma:
IMMOBILIEN BOZEN GmbH
Name:
Dr. Heidi Scheiflinger 
Telefon:
00390471052299
Faxnummer:
00390471052298
E-Mail:
info@immobil-bozen.com
Mitteilung senden