W2 - Zweizimmerwohnung mit Terrasse und Balkon

EnnebergMontal
auf Anfrage

allgemeine Informationen

Immobiliennr.:
BK13442_W2
Vermarktungsart:
Kauf
Immobilienart:
Wohnung
Etage:
1
Gesamtetagen:
1
Fahrstuhl:
Nein
nur für Ansässige:
Nein
Provision zzgl. MwSt.:
3

Flächen und Ausstattung

Wohnfläche:
47,14 m²
Balkon-, Terrassenfläche:
13,85 m²
Verkaufsfläche:
68,21 m²
Zimmer:
2
Schlafzimmer:
1
Badezimmer:
1
Balkone:
1
Terrassen:
1

Energieeffizienz

Baujahr:
2025
Energiequelle:
Gas
Heizung:
Fußbodenheizung
Energieklasse:
A
Objektbeschreibung:
Neue, konventionierte, Zweizimmerwohnung mit Wohnküche, einem Schlafzimmer, einem Badezimmer, Terrasse und Balkon.
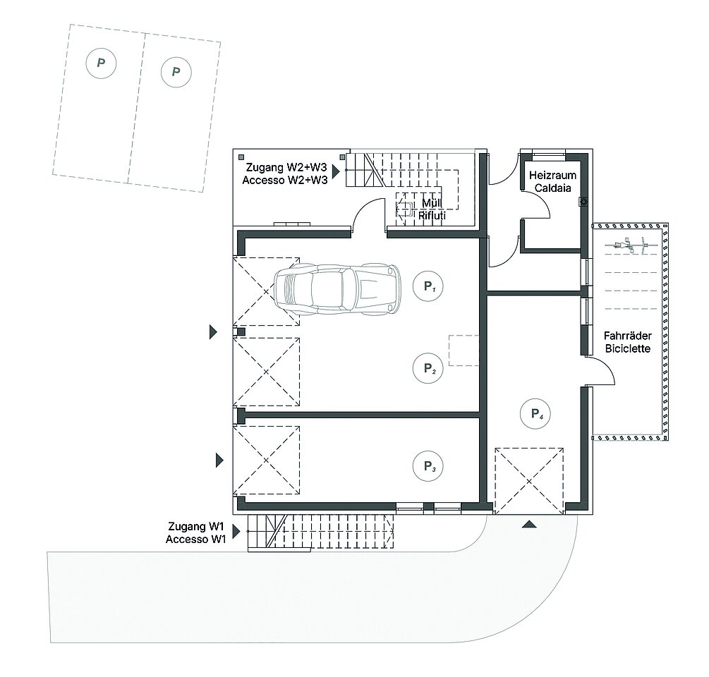
Zur Wohnung gehören außerdem ein Garagenstellplatz mit einem Schrank, eine Fahrradgarage sowie ein Müllraum.

Willkommen im Montal, einem Ortsteil der idyllischen Berggemeinde Enneberg, gelegen in einem Seitenarm des Gadertals. Hier entsteht ein modernes Klimahaus A Gebäude mit Holz-Außenverkleidung mit insgesamt nur drei Wohneinheiten, allesamt in hochwertiger Ausführung. Im Kaufpreis inbegriffen sind ein bzw. zwei Garagenstellplätze, jeweils ein Außenstellplatz sowie Garagenstellplätze für Fahrräder.
Enneberg liegt am Rande des Naturparks Fanes-Sennes-Prags und bietet einen traumhaften Blick auf die Dolomiten. Der Naturpark ist das ganze Jahr über ein Paradies für Outdoor-Enthusiasten – ideal zum
Wandern, Mountainbiken, Rodeln und mehr. Im Winter profitieren Schneesportler von der Lage am Fuße des Südtiroler Skiberg Nummer 1, dem Kronplatz.

Kontaktperson

Firma:
Castellanum Srl
Name:
Castellanum Bruneck - Brunico 
Straße:
Via Michael Pacher 5
Ort:
39031 Brunico
Telefon:
00390474862621
E-Mail:
bruneck@castellanum.it
Website:
www.castellanum.it
Mitteilung senden