Stilfs: Sanierungsbedürftiges Wohnhaus mit Wirtschaftsgebäude zu verkaufen

StilfsStilfs
220.000 €

allgemeine Informationen

Immobiliennr.:
347
Vermarktungsart:
Kauf
Immobilienart:
Haus
Fahrstuhl:
Nein
nur für Ansässige:
Nein
Kaufpreis:
220.000,00 €
Provision zzgl. MwSt.:
3 % + MwSt.

Flächen und Ausstattung

Wohnfläche:
326,00 m²
Grundstücksfläche:
540,00 m²
Zimmer:
5
Schlafzimmer:
4

Energieeffizienz

Zustand:
Teil/Vollrenovierungsbedürftig
Energieklasse:
G
Objektbeschreibung:
Zum Verkauf steht ein sanierungsbedürftiges Wohnhaus mit Wirtschaftsgebäude und umliegender Grundfläche in der Gemeinde Stilfs, Örtlichkeit Stilfser Brücke.

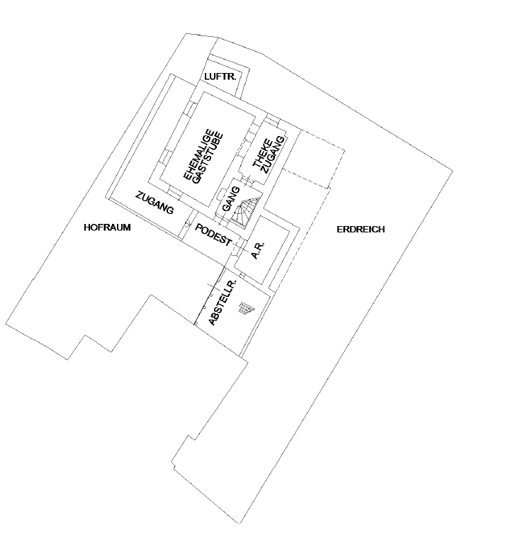
Das Wohnhaus ist ein ehemaliges Gasthaus und wie folgt eingeteilt:

Kellergeschoss: Keller
Erdgeschoss: Hofraum, Zugang, 2 Abstellräume, ehemalige Gaststube und Theke
1. Obergeschoss: 2 Zimmer, 2 Abstellräume, WC, Badezimmer, Küche, Balkon und Veranda
2. Obergeschoss: 2 Zimmer, Abstellraum, Selchküche und Balkon
3. Obergeschoss: Dachboden
Die Gesamtkubatur des Wohnhauses beträgt ca. 752 m³.

Das Wirtschaftsgebäude ist mit einem Zwischenbau an das Wohnhaus angebaut und besteht aus einem Stall im Erdgeschoss und einem darüberliegendem Stadel.
Die Gesamtkubatur des Wirtschaftsgebäudes beträgt ca. 328 m³.

Das Wohnhaus befindet sich im Landwirtschaftsgebiet und könnte aufgrund der aktuellen Gesetzgebung auch auf 1.000 m³ erweitert werden.

Die Liegenschaft ist nicht konventioniert und kann somit auch als Ferienimmobilie genutzt werden.

Kontaktperson

Firma:
Wellenzohn Immobilien des Wellenzohn Bernhard & Co. KG
Straße:
Göflanerstrasse 33
Ort:
39028 Schlanders
Telefon:
00390473620300
E-Mail:
info@wellenzohn.eu
Website:
www.wellenzohn.eu
Mitteilung senden