Sanierungsbedürftiges Reihenhaus mit Garage und viel Gestaltungsspielraum

BrixenBrixen
580.000 €

allgemeine Informationen

Immobiliennr.:
21774
Vermarktungsart:
Kauf
Immobilienart:
Haus
Fahrstuhl:
Nein
nur für Ansässige:
Nein
Kaufpreis:
580.000,00 €

Flächen und Ausstattung

Gesamtfläche:
173,00 m²
Zimmer:
8
Schlafzimmer:
5
Badezimmer:
3
Balkone:
1
Terrassen:
1
Objektbeschreibung:
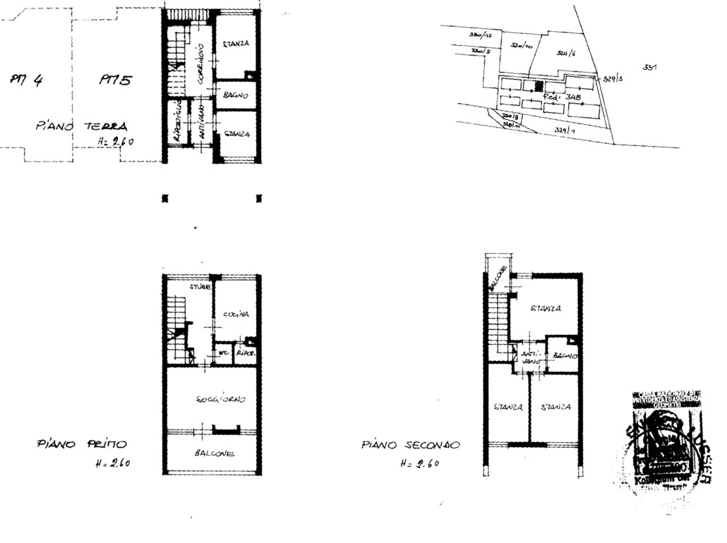
Zum Verkauf steht ein Reihenhaus mit Garage in ruhiger und begehrter Wohnlage von Brixen – Milland. Die Immobilie erstreckt sich über mehrere Stockwerke und bietet großzügige Flächen sowie vielfältige Gestaltungsmöglichkeiten. Ein internes Treppenhaus verbindet alle Ebenen und sorgt für eine klare, funktionale Raumstruktur. Die Raumhöhe von ca. 2,60 m unterstreicht das angenehme Wohngefühl.

Raumaufteilung



Erdgeschoss: Eingang, 2 Schlafzimmer, Abstellraum, Zugang zum kleinen privaten Garten beim Hintereingang und Badezimmer


1. Obergeschoss: Küche mit Abstellraum, Wohnzimmer mit Terrasse und Tages-WC


2. Obergeschoss: 2 Schlafzimmer (eines davon mit kleinem Balkon) und Badezimmer



Zur Immobilie gehört eine Einzelgarage für ein Fahrzeug. 

Das Haus ist komplett zu renovieren, wodurch sich großes Potenzial zur individuellen Neugestaltung nach eigenen Vorstellungen ergibt – ideal, um moderne Wohnkonzepte umzusetzen.

Die Immobilie befindet sich in einer sehr ruhigen Wohngegend, nahe am Bachdamm, ideal für Spaziergänge, Freizeit und Erholung. Gleichzeitig sind das Stadtzentrum von Brixen, Schulen, Einkaufsmöglichkeiten und öffentliche Verkehrsmittel gut erreichbar.

Milland zählt zu den beliebtesten Wohnlagen der Stadt – sonnig, grün und besonders familienfreundlich.

Besondere Merkmale & Vorteile



Nicht konventioniert: volle Freiheit bei Nutzung, Vermietung oder Weiterverkauf


Garage


Ruhige, grüne Lage nahe am Bachdamm


Familienfreundlich durch 5 Schlafzimmer


Großzügige Raumaufteilung auf mehreren Ebenen


Renovierungsobjekt mit Potenzial – ideal für Eigennutzer oder Investoren


Balkon, Terrasse und privater Außenbereich



Dieses Reihenhaus bietet eine seltene Gelegenheit in einer der gefragtesten Wohnzonen von Brixen. Dank der nicht konventionierten Nutzung, der ruhigen Lage und der familiengerechten Größe eignet sich die Immobilie ideal für Familien, Paare mit Platzbedarf oder als langfristige Investition.


Mehr Informationen unter: https://www.ruth-immobilien.com/de/immobile/sanierungsbeduerftiges-reihenhaus-mit-garage-und-viel-gestaltungsspielraum_21774

Ruth Immobilien
Dorfstraße 12 / Via del Paese
39040 Vahrn / Varna (BZ)
Tel. +39 0472 970090

Kontaktperson

Firma:
RUTH Immobilien GmbH
Name:
Ruth Immobilien GmbH - Sitz Vahrn 
Straße:
Dorfstraße 12
Ort:
39040 Vahrn
E-Mail:
info@ruth-immobilien.com
Kontaktperson
Mitteilung senden