Restaurant „Zur Brücke“ inklusive zwei Wohnungen

TisensPrissian
1.200.000 €

allgemeine Informationen

Immobiliennr.:
ME13398
Vermarktungsart:
Kauf
Immobilienart:
Gastgewerbe (Restaurant)
Etage:
1
Gesamtetagen:
1
Fahrstuhl:
Ja
Möblierung:
Voll
Kaufpreis:
1.200.000,00 €
Provision zzgl. MwSt.:
3%

Flächen und Ausstattung

Balkon-, Terrassenfläche:
28,44 m²
Nutzfläche:
158,16 m²
Kellerfläche:
115,54 m²
Lagerfläche:
76,20 m²
Verkaufsfläche:
272,84 m²
Gastro-Fläche:
382,28 m²
Zimmer:
3
Badezimmer:
2
sep. WC:
2
Terrassen:
1

Energieeffizienz

Baujahr:
2000
Energiequelle:
Gas
Heizung:
Fußbodenheizung
Energieklasse:
G
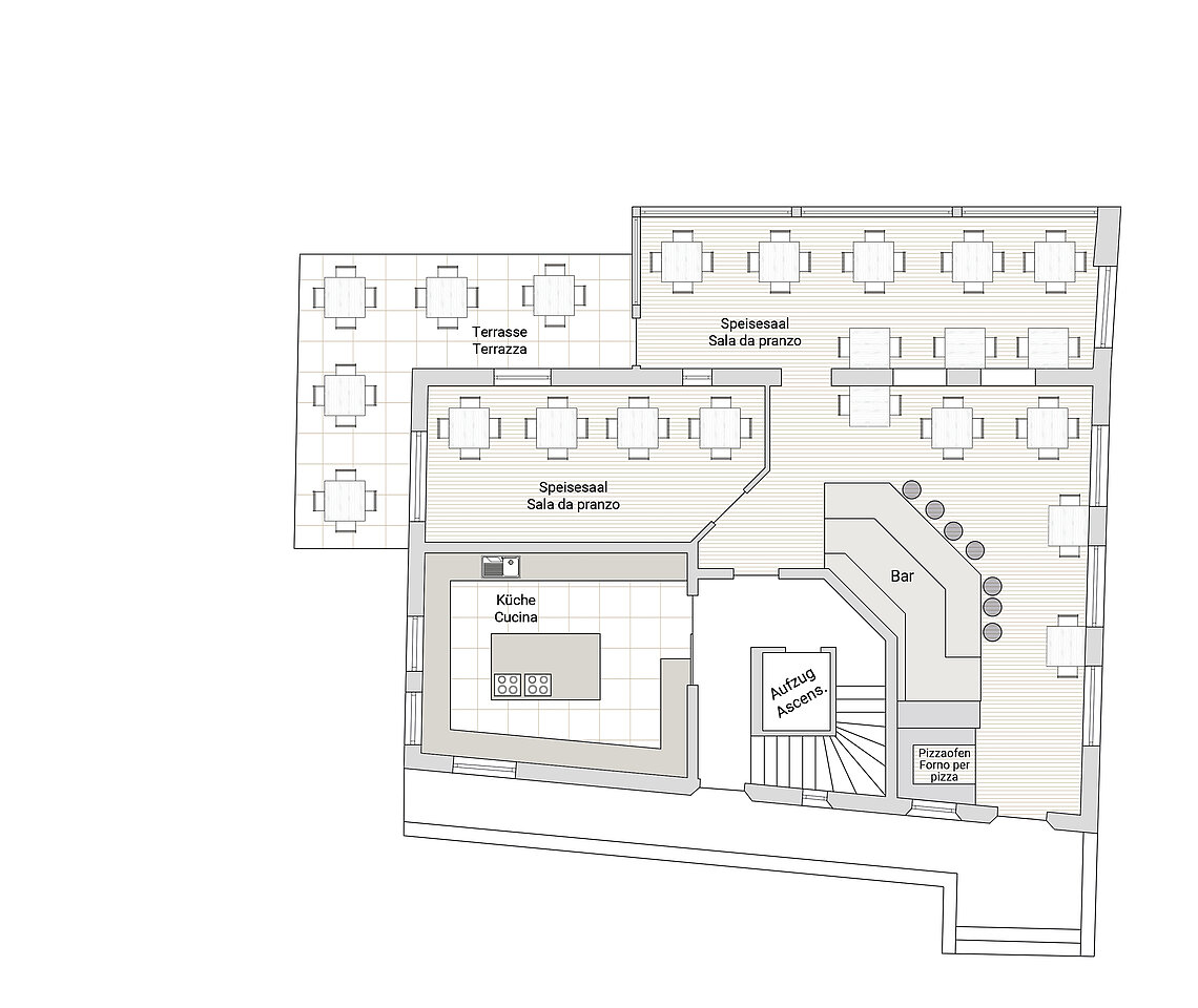
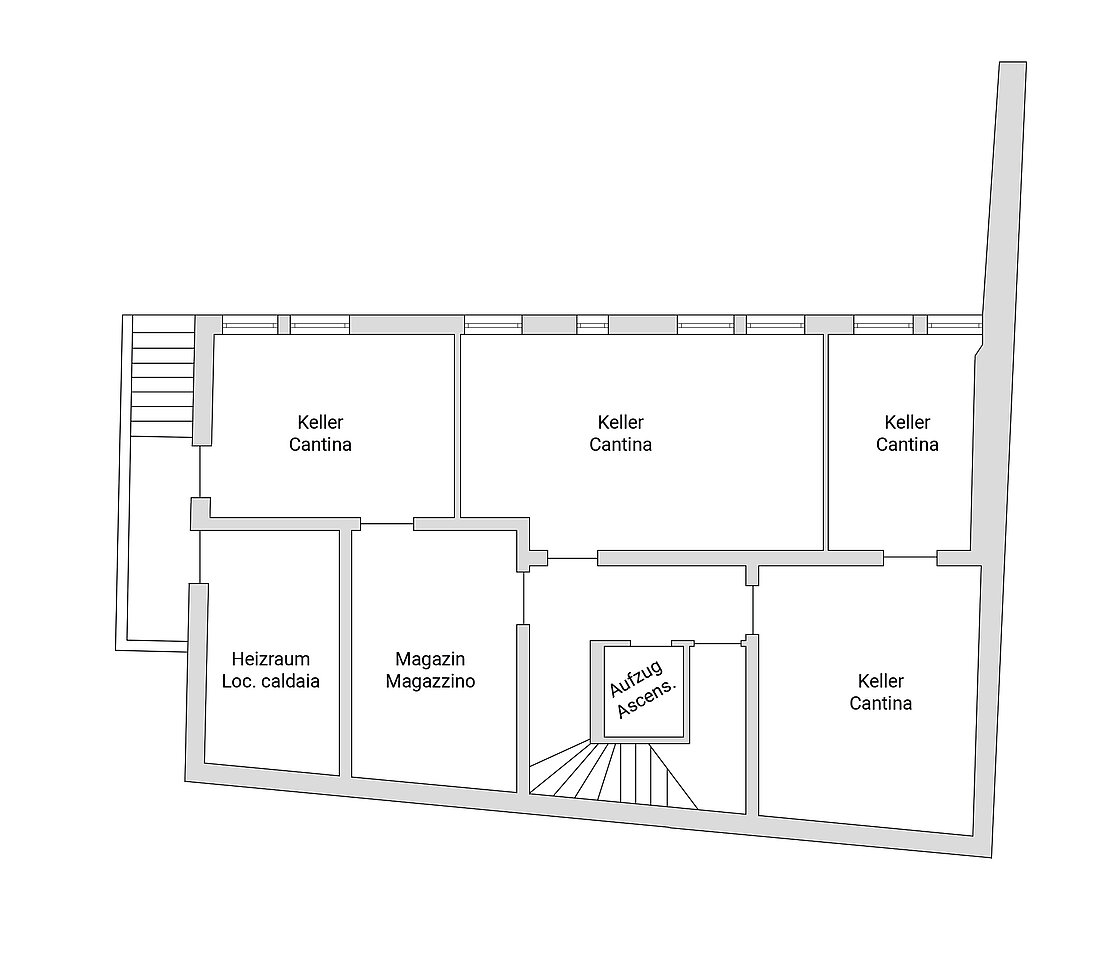
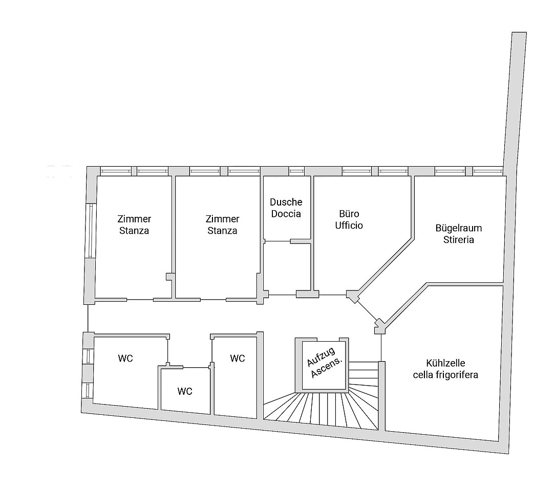
Objektbeschreibung:
Wir verkaufen im Zentrum von Prissian, direkt am Fluss gelegen, das Restaurant/Pizzeria „Zur Brücke“. Im Erdgeschoss befinden sich die Bar, Pizzeria, Küche, eine getäfelte Stube sowie eine tolle Terrasse direkt am Fluss mit Aussicht auf „Schloss Katzenzungen“. Im Untergeschoss befinden sich verschiedene Lagerräume samt Kühlzelle, ein Büro, ein Personalzimmer, die Toiletten sowie der Heizraum. Im 1. Obergeschoss eine Zwei-Zimmer-Wohnung und eine Drei-Zimmer-Wohnung welche ideal für die Beherbergung vom Personal sind.

Kontaktperson

Firma:
Castellanum RE Srl
Name:
Castellanum Meran - Merano 
Straße:
Via Portici 37
Ort:
39012 Merano
Telefon:
00390473055344
E-Mail:
meran@castellanum.it
Website:
www.castellanum.it
Mitteilung senden