Prad/Lichtenberg: Geschlossener Hof "Pineth" in Traumlage zu verkaufen

Prad am StilfserjochLichtenberg
auf Anfrage

allgemeine Informationen

Immobiliennr.:
601
Vermarktungsart:
Kauf
Immobilienart:
Sonstige
Fahrstuhl:
Nein
Provision zzgl. MwSt.:
3% + MwSt.
Objektbeschreibung:
In traumhafter Lage oberhalb von Lichtenberg, einer Fraktion der Gemeinde Prad am Stilfserjoch, befindet sich der geschlossene Hof „Pineth“.
Das sonnige Hochplateau garantiert einen unvergleichlichen Panoramablick über den Mittel- und Obervinschgau und befindet sich auf ca. 1.100 m.ü.d.M..

Der Hof besteht aus:
- Wohnhaushälfte
- Wirtschaftsgebäuden
- ca. 4,3 ha Wiesen
- ca. 1.700 m² Weide
- ca. 800 m² Wald

Das Wohnhaus ist mit dem Nachbarsgebäude zusammengebaut und besteht aus:
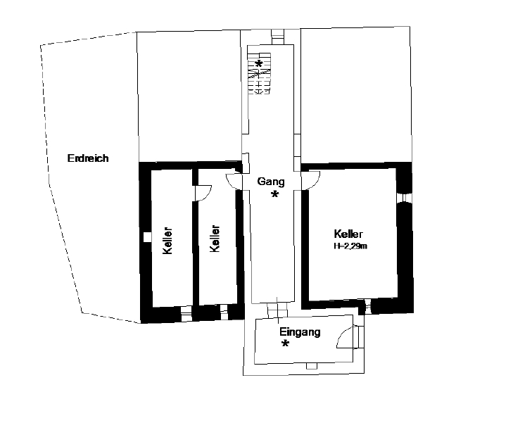
- Kellergeschoss: 3 Kellerräume
- Erdgeschoss: Gang, Schlafzimmer, Badezimmer, Küche, Wohnzimmer, Terrasse und Holzlege
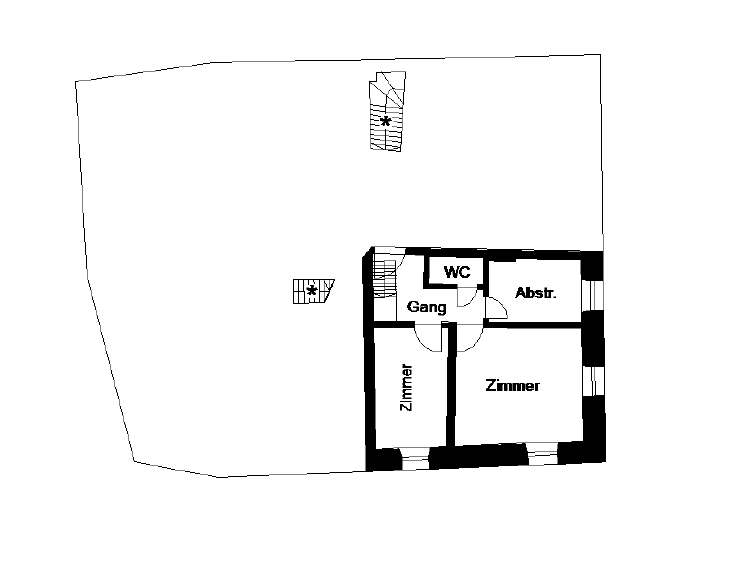
- 1. Obergeschoss: Gang, 2 Schlafzimmer, Abstellraum und WC
- 2.Obergeschoss: Dachboden, Arbeitsraum und Selche

Bei den Wirtschaftsgebäuden handelt es sich um eine Werkstätte samt landwirtschaftlichem Schuppen sowie um einen Stall / Stadel, welcher um eine Garage und mehrere Lagerräume erweitert wurde. Diese Gebäude befinden sich in Alleinlage, in unmittelbarer Nähe zur Hofstelle und wurden in den 1970er Jahren erbaut und in den 1990er Jahren erweitert.

Die landwirtschaftlichen Grundstücke befinden sich in der Nähe der Hofstelle und können großteils maschinell bearbeitet werden.
Ausstattung:
Weiters gehören zum geschlossenen Hof das Miteigentum zu 60/2310 an der Sennerei im Dorf Lichtenberg und die Zugehörigkeit zur Lichtenberger Alm.

Es besteht die Möglichkeit ein neues Wohnhaus am Wirtschaftsgebäude zu errichten.
Sonstiges:
Im Volksmund sagt man: "Pineth, Lechtl und Tappein wearn die schiansten Höfe im Landl sein".

Kontaktperson

Firma:
Wellenzohn Immobilien des Wellenzohn Bernhard & Co. KG
Straße:
Göflanerstrasse 33
Ort:
39028 Schlanders
Telefon:
00390473620300
E-Mail:
info@wellenzohn.eu
Website:
www.wellenzohn.eu
Mitteilung senden