Neubauhighlight in Naturns – 3 Zimmer mit großer Terrasse

NaturnsNaturns
445.000 €

allgemeine Informationen

Immobiliennr.:
RM768
Vermarktungsart:
Kauf
Immobilienart:
Wohnung
Etage:
1
Gesamtetagen:
1
Fahrstuhl:
Ja
nur für Ansässige:
Nein
Kaufpreis:
445.000,00 €
Provision zzgl. MwSt.:
3% vom Kaufpreis

Flächen und Ausstattung

Wohnfläche:
75,00 m²
Balkon-, Terrassenfläche:
65,00 m²
Kellerfläche:
2,00 m²
Gesamtfläche:
135,00 m²
Zimmer:
3
Schlafzimmer:
2
Badezimmer:
1
Stellplätze:
1

Energieeffizienz

Baujahr:
2024
Energiequelle:
Gas
Heizung:
Fußbodenheizung
Energieklasse:
B
Objektbeschreibung:
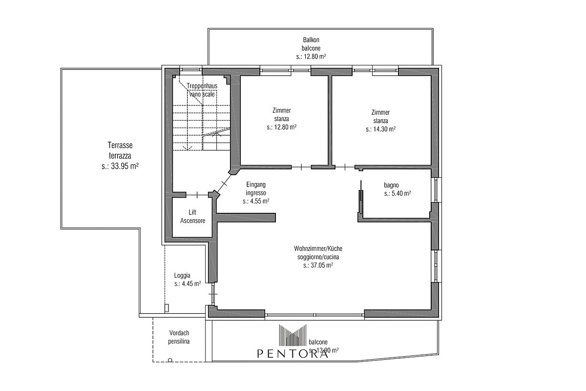
In einem eleganten Neubau mit nur vier Einheiten erwartet Sie diese helle 3-Zimmerwohnung im ersten Stock. Die Fertigstellung erfolgte 2024, das gesamte Haus überzeugt durch moderne Architektur, hochwertige Materialien und ein angenehmes Wohngefühl. Ein besonderes Highlight ist die großzügige Terrasse – perfekt, um gemütlich zu grillen, zu entspannen oder einfach den Blick in die Umgebung zu genießen. Große Fensterflächen lassen viel Licht in die Räume und schaffen ein offenes, freundliches Ambiente. Die Wohnung ist nicht konventioniert und eignet sich daher ideal auch als Ferienwohnung. Ein Stellplatz im Freien sowie ein kleiner Keller können zusätzlich erworben werden.
Ein Rückzugsort mit Stil, Komfort und Sonnengenuss – mitten in Naturns.


Handelsfläche: ca. 135 m²
Nettowohnfläche: ca. 75 m²
Etage: 1
Ausrichtung: Süden
Balkone: ca. 14 m² + 13 m²
Terrasse/Loggia: ca. 34 m² + 4 m²
Keller: extra
Aufzug: ja
Stellplatz: 22.000 €
Heizung: Gas
Kondominiumsspesen: zu definieren
Konventioniert: nein

Finden Sie auf unserer Website weiterführende Informationen, wie z.B. einen speziell dafür angelegten 360°-Rundgang. Oder lassen Sie sich diesen durch eine direkte Anfrage über dieses Portal zukommen.

Alle Angaben sind als Richtwerte zu betrachten.

Für weitere Fragen oder einen unverbindlichen Besichtigungstermin stehen wir jederzeit gerne zur Verfügung.
IMMO MAYER vGmbH | srls | Romstraße | via Roma 102 | 39012 Meran | o | +39 0473 421778 | info@immo-mayer.com | www.immo-mayer.com

Kontaktperson

Firma:
IMMO Mayer
Name:
PENTORA IMMO Mayer 
Straße:
Romstraße 102
Ort:
39012 Meran
Telefon:
00390473421778
E-Mail:
info@immo-mayer.com
Mitteilung senden

Dokumente