Mals: 3-Zimmerwohnung mit Terrasse zu verkaufen

MalsDorfzentrum
220.000 €

allgemeine Informationen

Immobiliennr.:
578
Vermarktungsart:
Kauf
Immobilienart:
Wohnung
Fahrstuhl:
Nein
Möblierung:
Teil
nur für Ansässige:
Nein
Kaufpreis:
220.000,00 €
Provision zzgl. MwSt.:
3% + MwSt.

Flächen und Ausstattung

Wohnfläche:
83,00 m²
Balkon-, Terrassenfläche:
26,00 m²
Zimmer:
3
Schlafzimmer:
2
Badezimmer:
1

Energieeffizienz

Energiequelle:
Fernwärme
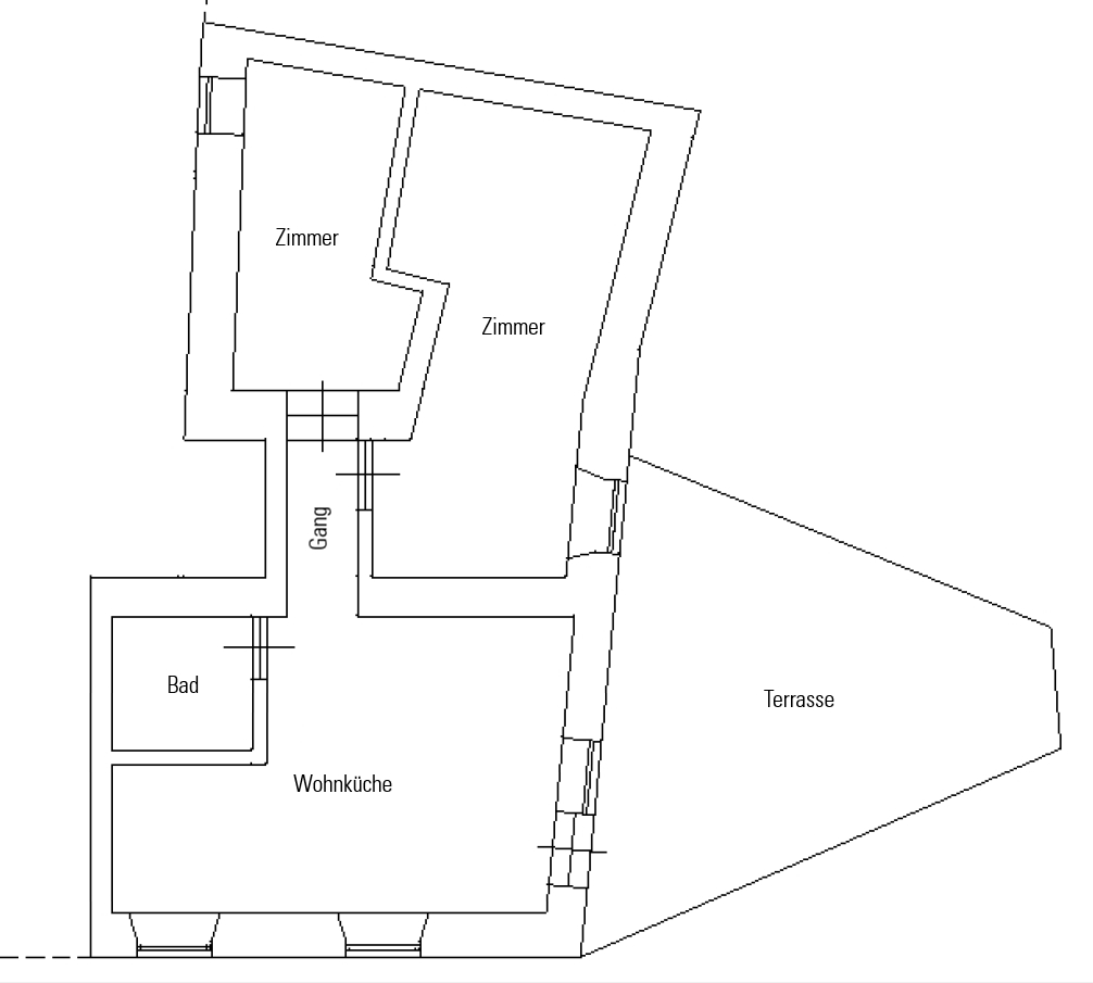
Objektbeschreibung:
Zum Verkauf steht eine 3-Zimmerwohnung in zentraler Lage von Mals.
Die Wohnung befindet sich im Erdgeschoss eines Mehrfamilienhauses und ist wie folgt aufgeteilt:
- Wohnküche
- 2 Schlafzimmer
- Badezimmer
- große Terrasse
Lage:
Die Immobilie befindet sich in einer ruhigen und dennoch sehr zentralen Wohngegend mit guten Verkehrsanbindungen. Das Dorfzentrum mit Geschäften, Bars, Restaurants, Apotheke, sowie öffentliche Verkehrsmittel sind in wenigen Minuten zu Fuß erreichbar.
Ausstattung:
Die Wohnung ist an das örtliche Fernwärmenetz angeschlossen.
Sonstiges:
Die Immobilie ist nicht konventioniert und kann somit auch als Ferien- oder Zweitwohnsitz genutzt werden.

Kontaktperson

Firma:
Wellenzohn Immobilien des Wellenzohn Bernhard & Co. KG
Straße:
Göflanerstrasse 33
Ort:
39028 Schlanders
Telefon:
00390473620300
E-Mail:
info@wellenzohn.eu
Website:
www.wellenzohn.eu
Mitteilung senden