Diese Webseite verwendet Cookies, um den bestmöglichen Service zu gewährleisten. Durch die weitere Nutzung dieser Webseite stimmen Sie der Cookie-Nutzung zu.
Weiterlesen.
Akzeptieren
Merkliste
DE
Sprache wählen
Sprache wählen
Deutsch
Italiano
English
Immobilien
Wohnen
Gewerbe
Über uns
Über IMMOREAL.IT
Ihr Immobilienmakler
Immobilie kaufen
Immobilie verkaufen
Service
Südtiroler Maklervereinigung
Immobilien-ABC
Kontakt
Immobilien
Einzelansicht
Magazin / Geschäftslokal mit Parkplätzen
Lana
Lana
1.150.000 €
Zurück
Merkzettel
Empfehlen
Anfragen
7 Fotos anzeigen
1,200.00
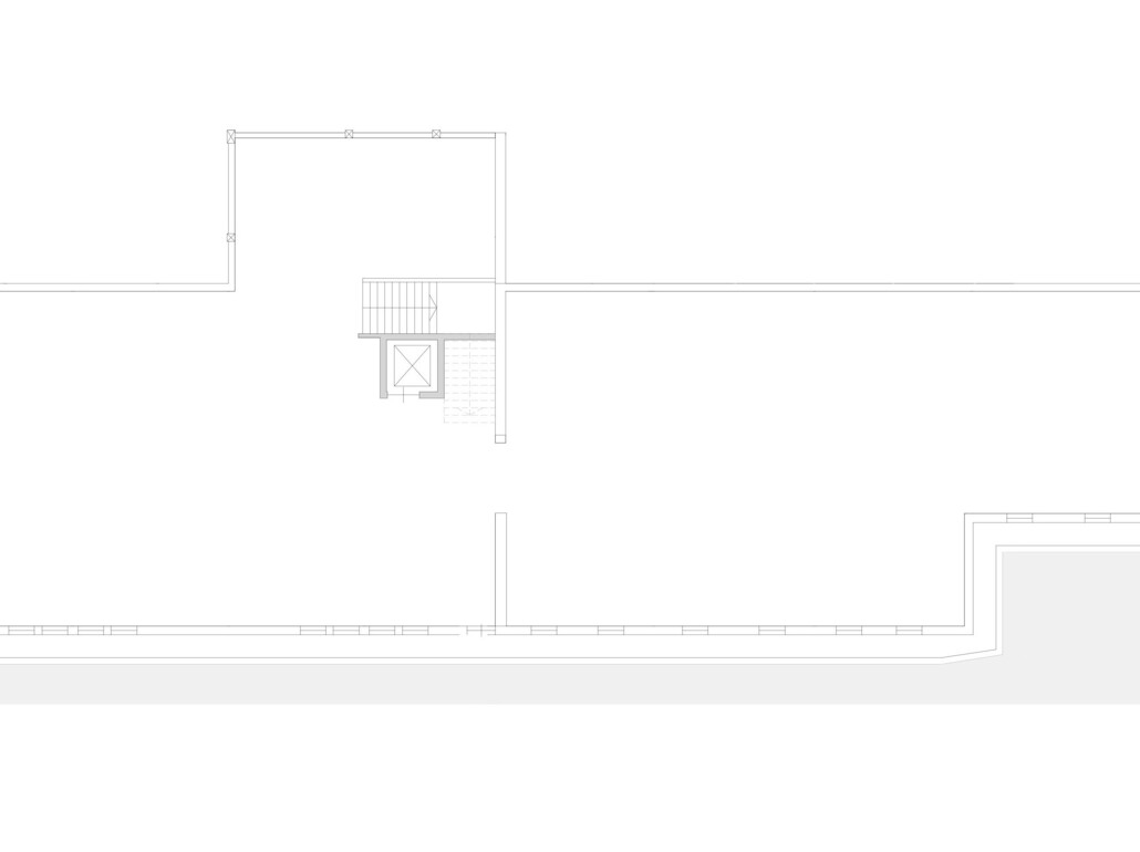
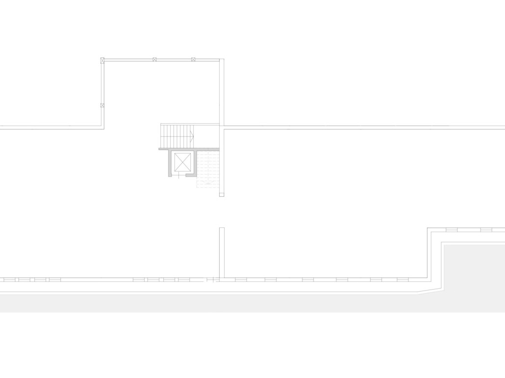
Grundrisse
allgemeine Informationen
Immobiliennr.:
21251
Vermarktungsart:
Kauf
Immobilienart:
Halle/Lager/Produktion (Halle)
Fahrstuhl:
Nein
Kaufpreis:
1.150.000,00 €
Flächen und Ausstattung
Gesamtfläche:
1.200,00 m²
Stellplätze:
1
Zurück
Merkzettel
Empfehlen
Anfragen
Objektbeschreibung:
Zum Verkauf steht eine vielseitig nutzbare Gewerbefläche im Untergeschoss, die sowohl als Magazin als auch als Geschäftslokal bestens geeignet ist.
Highlights der Immobilie:
Untergeschoss mit Fenstern und Lichtkuppeln, wodurch die Räume hell und freundlich wirken
Raumhöhe: 3,00 m + 0,30 m Decke = insgesamt 3,30 m – ideal für flexible Nutzung
Großzügige, offene Grundfläche mit tragenden Säulen und viel Gestaltungsspielraum
Bereits vorhandene Raumunterteilungen, die nach Bedarf angepasst werden können
Derzeit im Ausbauzustand – freie Gestaltung nach eigenen Vorstellungen möglich
Die Fläche bietet die Möglichkeit zur Unterteilung in mehrere Einheiten.
Ob als Lagerfläche (Magazin), Showroom, Atelier, Praxis oder Büro/Geschäftslokal – diese Immobilie bietet zahlreiche Möglichkeiten.
Darüber hinaus stehen im Außenbereich insgesamt 21 Parkplätze zur Verfügung, die separat zum Preis von jeweils € 15.000,00 erworben werden können.
Mehr Informationen unter: https://www.ruth-immobilien.com/de/immobile/magazin-geschaeftslokal-mit-parkplaetzen_21251
Ruth Immobilien
Waltherplatz 2 / Piazza Walther
39100 Bozen / Bolzano
Tel. +39 0471 090790
Kontaktperson
Firma:
RUTH Immobilien GmbH
Name:
Ruth Immobilien GmbH - Sitz Bozen
Straße:
Waltherplatz 2
Ort:
39100 Bozen
E-Mail:
info@ruth-immobilien.com
Mitteilung senden
Eine Besichtigung vormerken