Luxuriöse Zweizimmerwohnung in La Villa/Alta Badia im Erdgeschoss – ideal als Ferienwohnung

AbteiStern
815.000 €

allgemeine Informationen

Immobiliennr.:
728
Vermarktungsart:
Kauf
Immobilienart:
Wohnung
Fahrstuhl:
Nein
Möblierung:
Voll
nur für Ansässige:
Nein
Kaufpreis:
815.000,00 €
Provision zzgl. MwSt.:
3% vom Kaufpreis

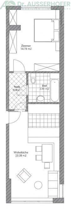
Flächen und Ausstattung

Wohnfläche:
56,55 m²
Verkaufsfläche:
67,89 m²
Zimmer:
2
Schlafzimmer:
1
Badezimmer:
1

Energieeffizienz

Energieklasse:
C
Objektbeschreibung:
Stilvolle Wohnung in Stern – wohnen mit alpinem Charme

Im charmanten Ort Stern, Hochabtei (Alta Badia), nur wenige Schritte von den bekannten Skigebieten entfernt, erwartet Sie diese besondere Erdgeschosswohnung. Umgeben von der beeindruckenden Bergwelt der Dolomiten ist sie ein idealer Rückzugsort – ob als Ferienwohnung oder als wertbeständige Immobilie.
Die Wohnung bietet einen großzügigen, lichtdurchfluteten Wohnraum, ein elegantes Badezimmer sowie ein geschmackvoll eingerichtetes Schlafzimmer. Hochwertige Naturmaterialien wie Holz und Stein schaffen ein behagliches Ambiente, während die durchdachte Einrichtung zeitlose Eleganz vermittelt. Vollständig möbliert, lädt sie direkt zum Einziehen und Wohlfühlen ein.

Ausstattung & Highlights:

Erdgeschosswohnung in zentraler Lage von Stern/Alta Badia

Heller Wohnraum mit stilvoller Einrichtung

Elegantes Badezimmer mit Badewanne, Dusche und Bidet

Schlafzimmer mit alpinem Flair – Holz, warme Farbtöne, exklusive Details

Komplett möbliert

Ideal als Ferienwohnung oder als Investition in eine gefragte Urlaubsregion

Zur Wohnung gehört ein Keller, sowie ein Autoabstellplatz im Freien

Diese stilvolle Wohnung in Stern/Alta Badia vereint alpinen Charme mit modernem Wohnkomfort – und macht Wohnen in den Dolomiten zu einem besonderen Erlebnis. Verfügbar ab April 2026.

Kontaktperson

Name:
Florian Ausserhofer 
Telefon:
00393405631711
E-Mail:
info@ausserhofer.immo
Mitteilung senden