Industriehalle mit Lagerflächen, Büros und Innenhof (gesamtes Gebäude)

BozenBozen
12.500 €

allgemeine Informationen

Immobiliennr.:
20829
Vermarktungsart:
Miete
Immobilienart:
Halle/Lager/Produktion (Halle)
Etage:
1
Gesamtetagen:
1
Fahrstuhl:
Nein
Nettokaltmiete:
12.500,00 €

Flächen und Ausstattung

Gesamtfläche:
5.141,00 m²
Stellplätze:
1
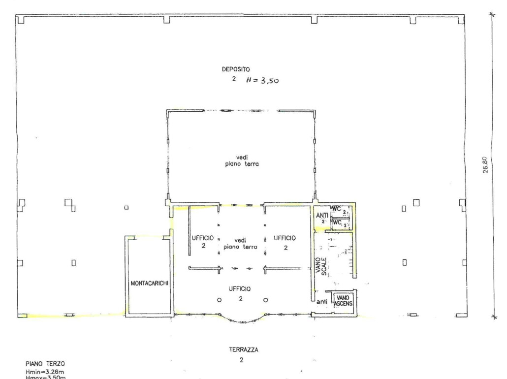
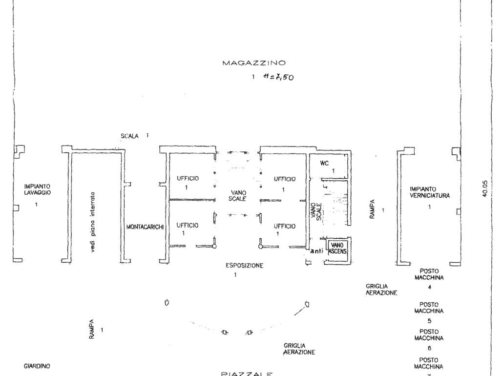
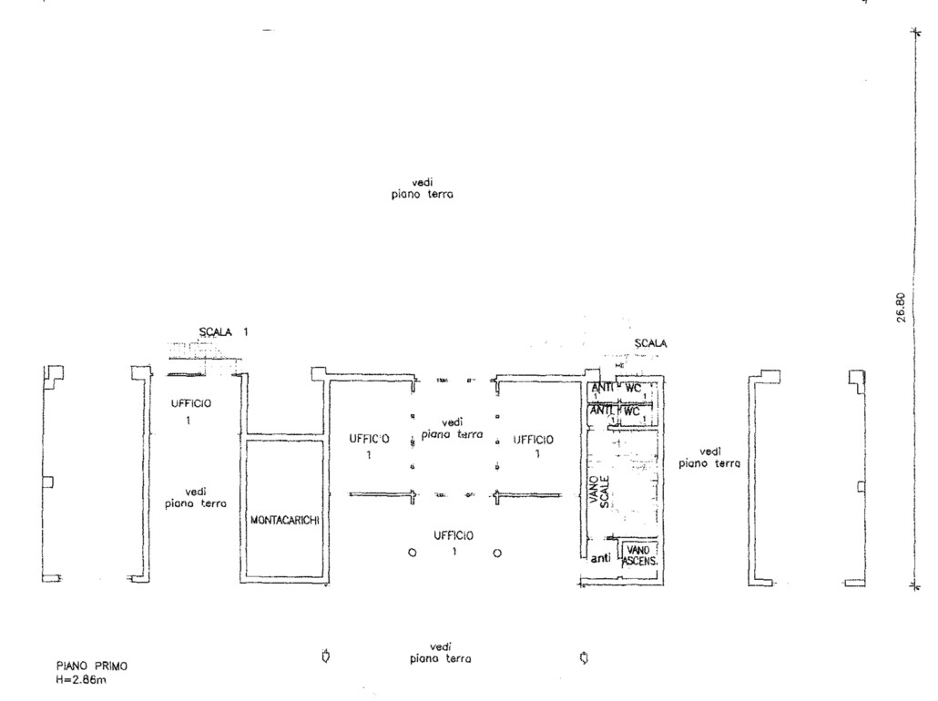
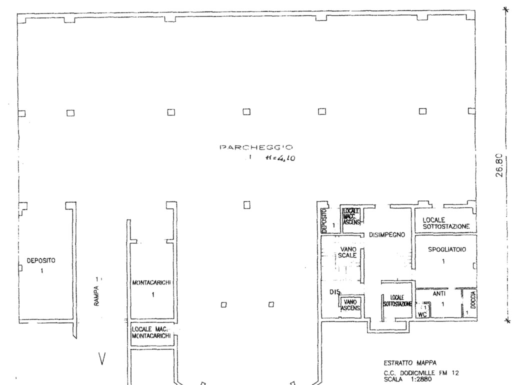
Objektbeschreibung:
Wir bieten ein modernes, hochwertiges Industriegebäude in der Industriezone Süd von Bozen zur Miete an, mit einer Gesamtfläche von 5.141 m² (Nettonutzfläche: 4.843 m²), verteilt auf mehrere Ebenen – ideal für logistische, handwerkliche oder industrielle Tätigkeiten.

Das Gebäude erstreckt sich über mehrere Stockwerke mit einer Gesamtfläche von über 5.000 m² (freistehendes Gebäude).

Die Struktur eignet sich für eine vielfältige Nutzung: Lagerung, Produktion und administrative Tätigkeiten lassen sich optimal innerhalb derselben Immobilie kombinieren.
Die hohe Tragfähigkeit der Geschossdecken ermöglicht eine intensive Nutzung aller Ebenen und macht die Immobilie besonders attraktiv für Unternehmen mit anspruchsvollen logistischen Anforderungen.

Die Lage ist äußerst attraktiv: direkt am Brennerautobahn-Korridor gelegen und weniger als 30 Minuten von der österreichischen Grenze entfernt – einer der wichtigsten Logistikknotenpunkte Norditaliens.

Ausstattung und Nutzung


Moderne Struktur in sehr gutem Zustand
Großzügige Lager- und Depotflächen
Innenhöhe bis zu 7,5 m, ideal für Lager, Produktion oder Logistik
Aufzug und Lastenaufzug (10 Tonnen) für effiziente Warenlogistik
Parkplätze für Mitarbeiter und Kunden
Vielseitige Nutzungsmöglichkeiten: Gewerbe, Lager, Büros, Showroom oder Produktion
Autonome Heizung für maximale betriebliche Unabhängigkeit



Mehr Informationen unter: https://www.ruth-immobilien.com/de/immobile/industriehalle-mit-lagerflaechen-bueros-und-innenhof-gesamtes-gebaeude-_20829

Ruth Immobilien
Waltherplatz 2 / Piazza Walther
39100 Bozen / Bolzano
Tel. +39 0471 090790

Kontaktperson

Firma:
RUTH Immobilien GmbH
Name:
Ruth Immobilien GmbH - Sitz Bozen 
Straße:
Waltherplatz 2
Ort:
39100 Bozen
E-Mail:
info@ruth-immobilien.com
Kontaktperson
Mitteilung senden