Hike, bike & ski alm hÜtte auf 2000 hÖhenmeter

Moos in PasseierPfelders
auf Anfrage

allgemeine Informationen

Immobiliennr.:
1964_i
Vermarktungsart:
Kauf
Immobilienart:
Gastgewerbe (Gastronomie)
Fahrstuhl:
Nein
Provision zzgl. MwSt.:
4% + MwSt.

Flächen und Ausstattung

Gastro-Fläche:
383,00 m²

Energieeffizienz

Baujahr:
2018
Objektbeschreibung:
Almhütte in Pfelders – urig, modern und direkt am Lift auf ca. 2000 Höhenmetern

Diese kürzlich umgebaute Almhütte in traumhafter Lage von Pfelders vereint traditionellen Charme mit zeitgemäßem Komfort. Durch ihre Ost-Ausrichtung genießen Sie die den ganzen Tag Sonne und einen unvergleichlichen Blick auf die umliegende Bergwelt. Die Grünbodenhütte ist bequem direkt mit dem Lift erreichbar – Sommer wie Winter ein perfekter Ausgangspunkt für Wanderer, Skifahrer und Genießer.

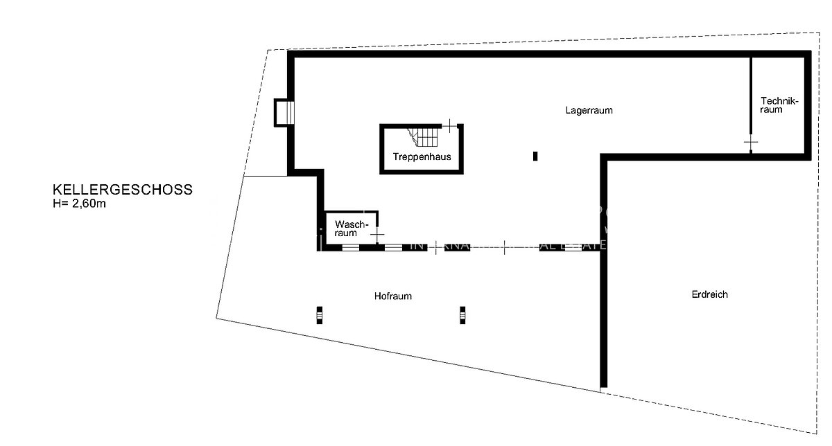
Die Hütte im Überblick – 383 m² auf 3 Etagen:

Kellergeschoss: Lagerraum, Garage, Technikraum, Waschraum
Erdgeschoss: Bar/Gaststube mit Balkon, gemütliches Stübele, Gäste-WCs, Küche und sonnige Terrasse
Obergeschoss: zusätzliche Terrasse mit Panoramaausblick, Après-Ski-Zelt und Sauna - Privatwohnung

Wohnung mit Privatsphäre – 92 m² Katasterfläche:
Im Obergeschoss befindet sich eine charmante Betreiber- oder Mitarbeiterwohnung mit zwei Schlafzimmer, Wohnküche, Badezimmer mit Dusche und separatem WC. Ein Balkon mit Bergblick laden zum Entspannen ein.

Die Immobilie ist aktuell bis Ende April 2026 verpachtet – eine attraktive Gelegenheit für Investoren oder künftige Eigennutzer mit Planungsvorlauf.

Ihr alpines Hideaway – vielseitig nutzbar als Gastronomiebetrieb, Einkehrhütte oder private Lodge.
Lage:
Pfelders liegt auf 1.622 m Höhe am Ende des idyllischen Passeiertals in Südtirol – ein alpines Juwel, das Ruhe, Ursprünglichkeit und perfekte touristische Infrastruktur vereint. Das autofreie Dorf ist Teil des Naturparks Texelgruppe und bietet zu jeder Jahreszeit ein unvergleichliches Naturerlebnis: im Sommer als Wander- und Bikeparadies, im Winter als familienfreundliches Skigebiet mit modernen Aufstiegsanlagen.

Die Grünbodenhütte ist direkt mit der Grünbodenbahn erreichbar und befindet sich mitten im Ski- und Wandergebiet – komfortabel, sonnig und mit atemberaubendem Blick auf die Gipfel der Ötztaler Alpen.

Entfernungen:
Meran: ca. 40 Minuten (35 km)
Bozen: ca. 1 Stunde 15 Minuten (70 km)
München: ca. 3 Stunden 45 Minuten (260 km)
Mailand: ca. 4 Stunden (320 km)

Pfelders ist sowohl für Gäste als auch für Betreiber hervorragend erreichbar – und bietet gleichzeitig die Abgeschiedenheit und alpine Ruhe, die man in dieser Höhenlage sucht.
Sonstiges:
Alle Angaben sind indikativ und können jederzeit Abänderungen unterliegen.

Kontaktperson

Firma:
Benedetti Real Service | Christie's International Real Estate
Name:
Sophia Biasi 
Straße:
Via Leonardo da Vinci Strasse 9
Ort:
39012 Merano
Telefon:
00390473236613
Faxnummer:
00390473231296
E-Mail:
bs@irs-benedetti.com
Website:
www.irs-benedetti.com
Mitteilung senden