Helle Ferienwohnung mit privatem Garten

Moos in PasseierPfelders
465.000 €

allgemeine Informationen

Immobiliennr.:
ME13462_1
Vermarktungsart:
Kauf
Immobilienart:
Wohnung
Fahrstuhl:
Ja
nur für Ansässige:
Nein
Kaufpreis:
465.000,00 €
Provision zzgl. MwSt.:
3%

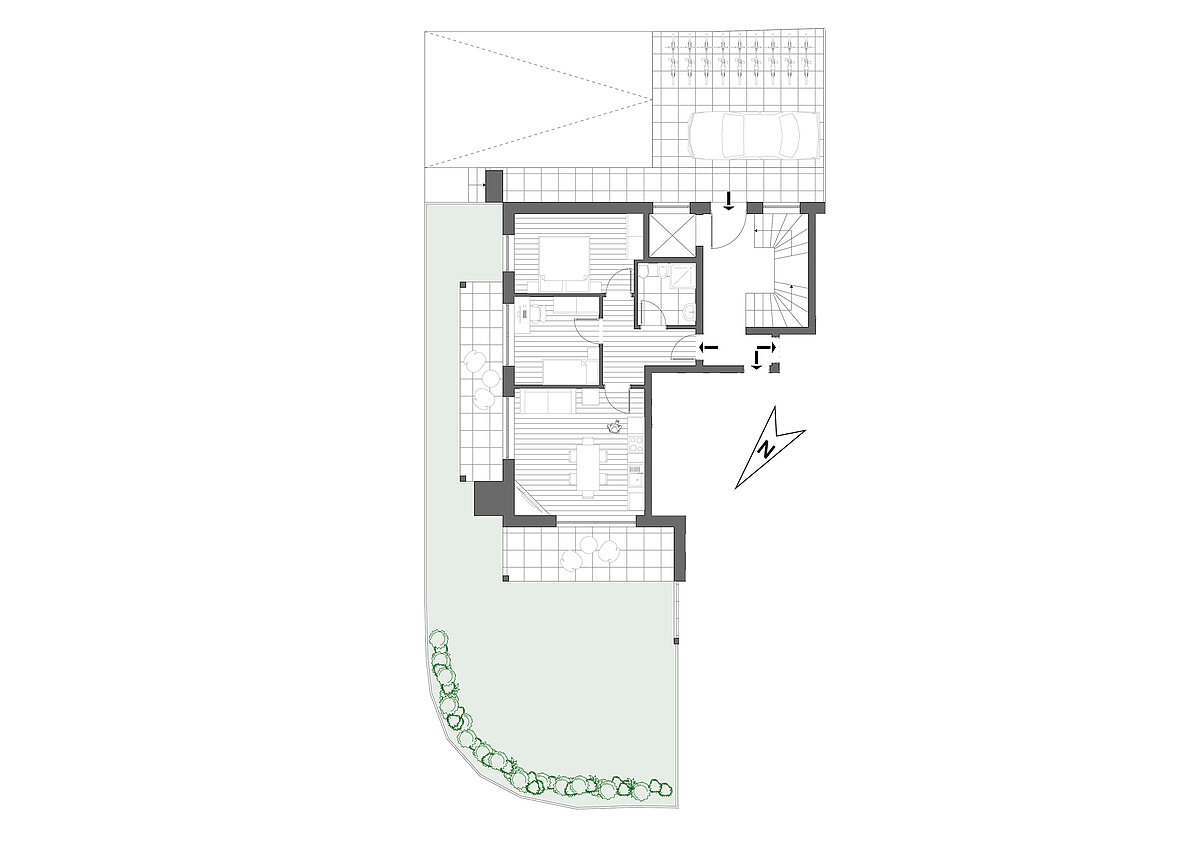
Flächen und Ausstattung

Wohnfläche:
52,85 m²
Balkon-, Terrassenfläche:
11,36 m²
Gartenfläche:
87,74 m²
Kellerfläche:
6,80 m²
Verkaufsfläche:
82,22 m²
Zimmer:
3
Schlafzimmer:
2
Badezimmer:
1
Terrassen:
2

Energieeffizienz

Baujahr:
2025
Energiequelle:
Fernwärme
Heizung:
Fußbodenheizung
Energieklasse:
A+
Objektbeschreibung:
Diese exklusive Wohnanlage besteht aus sieben einzigartigen Wohnungen, die modernen Wohnkomfort und Nachhaltigkeit vereinen. Das Gebäude erfüllt die KlimaHaus Richtlinien A-Nature und sorgt so für ein gesundes Raumklima sowie hohe Energieeffizienz.

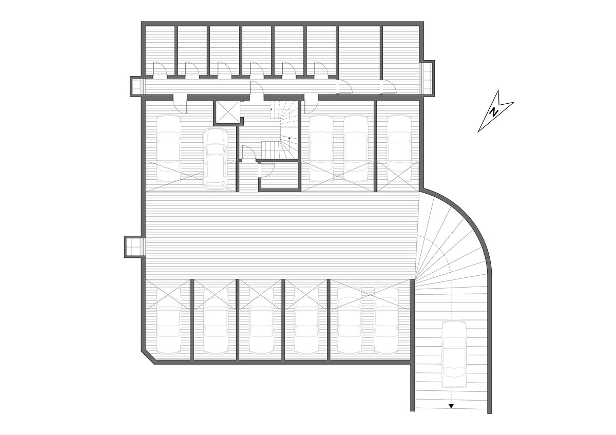
Jede Wohnung besticht durch lichtdurchflutete Räume und bietet großzügige Gärten oder Terrassen. Ein Aufzug erleichtert den Zugang zu allen Etagen. Die Kellerräume im Untergeschoss sorgen für ausreichend Stauraum. Zusätzlich stehen Garagen zum Verkauf, die Ihren Fahrzeugen sicheren Platz bieten.

Dieses Neubauprojekt in Pfelders ist ideal für alle, die Wert auf modernes Wohnen und naturnahe Erholungsmöglichkeiten legen. Überzeugen Sie sich selbst und vereinbaren Sie einen Besichtigungstermin!

Kontaktperson

Firma:
Castellanum RE Srl
Name:
Castellanum Meran - Merano 
Straße:
Via Portici 37
Ort:
39012 Merano
Telefon:
00390473055344
E-Mail:
meran@castellanum.it
Website:
www.castellanum.it
Mitteilung senden