Haus mit Panoramablick in Völs

Völs am SchlernObervöls
790.000 €

allgemeine Informationen

Immobiliennr.:
BX13759
Vermarktungsart:
Kauf
Immobilienart:
Haus
Fahrstuhl:
Nein
nur für Ansässige:
Nein
Kaufpreis:
790.000,00 €
Provision zzgl. MwSt.:
3%

Flächen und Ausstattung

Wohnfläche:
150,00 m²
Balkon-, Terrassenfläche:
4,30 m²
Kellerfläche:
65,00 m²
Verkaufsfläche:
234,00 m²
Balkone:
1

Energieeffizienz

Zustand:
Teil/Vollrenovierungsbedürftig
Heizung:
Ofenheizung
Energieklasse:
G
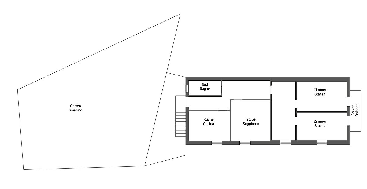
Objektbeschreibung:
Dieses sanierungsbedürftige Haus im Herzen von Völs bietet eine schöne Panoramaaussicht und verbindet Erholung mit Komfort. In der ruhigen Umgebung können Sie dem Stadtstress entfliehen, während Sie gleichzeitig Zugang zu Einkaufsmöglichkeiten, Restaurants und Bars in unmittelbarer Nähe haben. Das Haus umfasst zwei großzügige Wohneinheiten, jeweils mit einer Küche, einem Wohnzimmer, zwei Schlafzimmern und einem Badezimmer. Die Wohneinheit im zweiten Obergeschoss beeindruckt zudem mit einem eigenen Garten und einem Balkon. Das Haus ist nicht konventioniert und eignet sich deshalb bestens als Ferienimmobilie, was es zu einer hervorragenden Investitionsmöglichkeit macht.

Kontaktperson

Firma:
Castellanum Srl
Name:
Castellanum Brixen - Bressanone 
Straße:
Via Tratten 7
Ort:
39042 Bressanone
Telefon:
00390472201250
Faxnummer:
00390472201242
E-Mail:
info@castellanum.it
Website:
www.castellanum.it
Mitteilung senden