Großzügiges, neues Geschäftslokal in der "RAIFFEISEN PASSAGE" im Zentrum von Bruneck

BruneckBruneck
auf Anfrage

allgemeine Informationen

Immobiliennr.:
480
Vermarktungsart:
Miete
Immobilienart:
Einzelhandel (Ladenlokal)
Etage:
-1
Gesamtetagen:
-1
Fahrstuhl:
Nein

Flächen und Ausstattung

Nutzfläche:
202,00 m²
Lagerfläche:
40,00 m²
Verkaufsfläche:
258,00 m²
sep. WC:
1

Energieeffizienz

Baujahr:
2023
Zustand:
Erstbezug
Energiequelle:
Fernwärme
Heizung:
Fußbodenheizung
Energieklasse:
A
Objektbeschreibung:
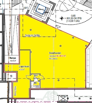
Dieses neue, großzügige Geschäftslokal befindet sich in der "RAIFFEISEN PASSAGE" im Zentrum von Bruneck, in bester Lage, wo auch ein Messner Mountain Museum entsteht.
Die Passage ist sehr hell mit ausgezeichneter Frequenzlage. Die großzügige Schaufensterfront bietet ausgezeichnete Präsentationsmöglichkeiten Ihrer Produkte.
Das Lokal hat eine Bruttofläche von ca. 258 m² und verfügt über ein Lager/Magazin mit ca. 40 m².

Kontaktperson

Firma:
Immo di/des Ausserhofer Dr. Karlheinz
Name:
Immobilien Dr. Ausserhofer 
Straße:
Europastraße 15
Ort:
39031 Bruneck
Telefon:
00390474554666
Faxnummer:
00390474554359
E-Mail:
info@ausserhofer.immo
Website:
www.ausserhofer.immo
Mitteilung senden