Großzügige, LKW-befahrbare Lagerhalle - Bozen Süd

BozenOberau
675.000 €

allgemeine Informationen

Immobiliennr.:
BZ13413_1
Vermarktungsart:
Kauf
Immobilienart:
Halle/Lager/Produktion (Lager)
Fahrstuhl:
Nein
Kaufpreis:
675.000,00 €
Provision zzgl. MwSt.:
3%

Flächen und Ausstattung

Verkaufsfläche:
820,00 m²

Energieeffizienz

Baujahr:
1973
Objektbeschreibung:
Castellanum bietet exklusiv den Verkauf einer großen Lager-/Industriehalle in strategischer Lage im Industriegebiet Bozen Süd an.

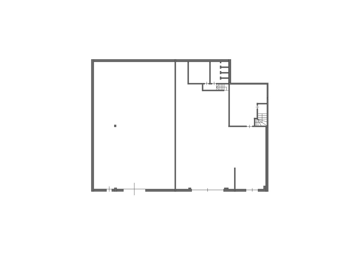
Die im Jahr 1973 errichtete Immobilie erstreckt sich über eine Gesamtfläche von ca. 820 m², aufgeteilt in zwei aneinandergrenzende Einheiten von ca. 419 m² und ca. 391 m², die funktional unabhängig voneinander sind. Die nutzbare Innenhöhe von ca. 6,5 m gewährleistet eine hohe Flexibilität und vielfältige Nutzungsmöglichkeiten und macht die Flächen für unterschiedliche Produktions-, Handwerks- oder Lageraktivitäten geeignet.

Der Zugang erfolgt über zwei automatische Tore:
• das erste mit einer Breite von ca. 4,10 m und einer Höhe von ca. 4,25 m für die Einheit mit einer Fläche von ca. 391 m²
• das zweite mit einer Breite von ca. 6,00 m und einer Höhe von ca. 4,25 m für die Einheit mit einer Fläche von ca. 419 m²

Die ca. 7,35 m breite Zufahrtsstraße ermöglicht eine einfache Rangierung und Zufahrt auch für schwere Fahrzeuge und macht die Immobilie besonders funktional für Lade- und Entladevorgänge. Derzeit ist die Halle bis Februar 2027 vermietet und erzielt eine Rendite von ca. 5 % pro Jahr; danach steht sie frei zur Verfügung.

Die Immobilie stellt somit eine Investitionsmöglichkeit dar, mit der Option, die Flächen in absehbarer Zeit selbst für die eigene Tätigkeit zu nutzen.

Kontaktperson

Firma:
Bozen
Straße:
Südtirolerstraße 23
Ort:
39100 Bozen
E-Mail:
bolzano@castellanum.it
Website:
www.castellanum.it
Mitteilung senden