Diese Webseite verwendet Cookies, um den bestmöglichen Service zu gewährleisten. Durch die weitere Nutzung dieser Webseite stimmen Sie der Cookie-Nutzung zu.
Weiterlesen.
Akzeptieren
Merkliste
DE
Sprache wählen
Sprache wählen
Deutsch
Italiano
English
Immobilien
Wohnen
Gewerbe
Über uns
Über IMMOREAL.IT
Ihr Immobilienmakler
Immobilie kaufen
Immobilie verkaufen
Service
Südtiroler Maklervereinigung
Immobilien-ABC
Kontakt
Immobilien
Einzelansicht
Glurns: Moderne 2-Zimmerwohnung mit Terrasse zu verkaufen
Glurns
Glurns
270.000 €
Zurück
Merkzettel
Empfehlen
Anfragen
5 Fotos anzeigen
57.00
1
1
Grundrisse
allgemeine Informationen
Immobiliennr.:
594
Vermarktungsart:
Kauf
Immobilienart:
Wohnung
Fahrstuhl:
Nein
nur für Ansässige:
Nein
Kaufpreis:
270.000,00 €
Flächen und Ausstattung
Wohnfläche:
57,00 m²
Schlafzimmer:
1
Badezimmer:
1
Terrassen:
1
Stellplätze:
1
Energieeffizienz
Zustand:
Neuwertig
Energiequelle:
Fernwärme
Heizung:
Fußbodenheizung
Zurück
Merkzettel
Empfehlen
Anfragen
Objektbeschreibung:
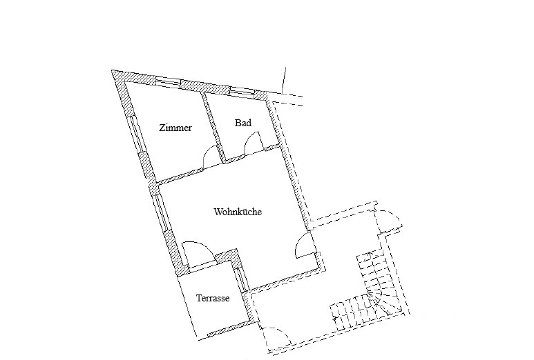
Zum Verkauf steht eine schöne 2-Zimmerwohnung in zentraler Lage von Glurns.
Die Wohnung hat eine Bruttowohnfläche von ca. 57 m² und besteht aus:
- Wohnküche
- Schlafzimmer
- Badezimmer
- Terrasse
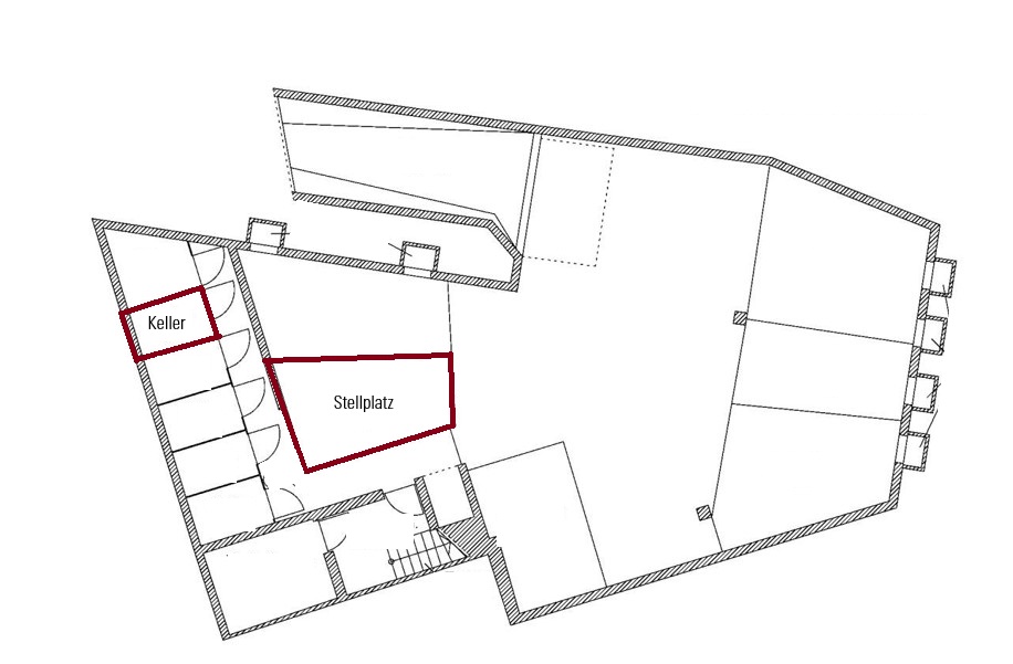
Weiters gehören zur Immobilie ein Keller und ein Autoabstellplatz im Kellergeschoss.
Lage:
Alle wichtigen Einrichtungen wie Geschäfte, Schulen und Banken sind in kürzester Zeit zu Fuß erreichbar.
Ausstattung:
Die Wohnung ist teilmöbliert.
Das Wohnhaus wird durch Fernwärme beheizt, der Wärmeaustausch in der Wohnung erfolgt mittels Bodenheizung.
Sonstiges:
Die Wohnung ist konventioniert und kann somit nicht als Ferien- oder Zweitwohnsitz genutzt werden.
Die Immobilie steht unter Denkmalschutz.
Kontaktperson
Firma:
Wellenzohn Immobilien des Wellenzohn Bernhard & Co. KG
Straße:
Göflanerstrasse 33
Ort:
39028 Schlanders
Telefon:
00390473620300
E-Mail:
info@wellenzohn.eu
Website:
www.wellenzohn.eu
Mitteilung senden
Eine Besichtigung vormerken