Gewerbehalle in strategischer Lage

VahrnIndustriezone
3.900 €

allgemeine Informationen

Immobiliennr.:
BX13750
Vermarktungsart:
Miete
Immobilienart:
Halle/Lager/Produktion
Fahrstuhl:
Nein
Nettokaltmiete:
3.900,00 €
Provision zzgl. MwSt.:
3%

Flächen und Ausstattung

Nutzfläche:
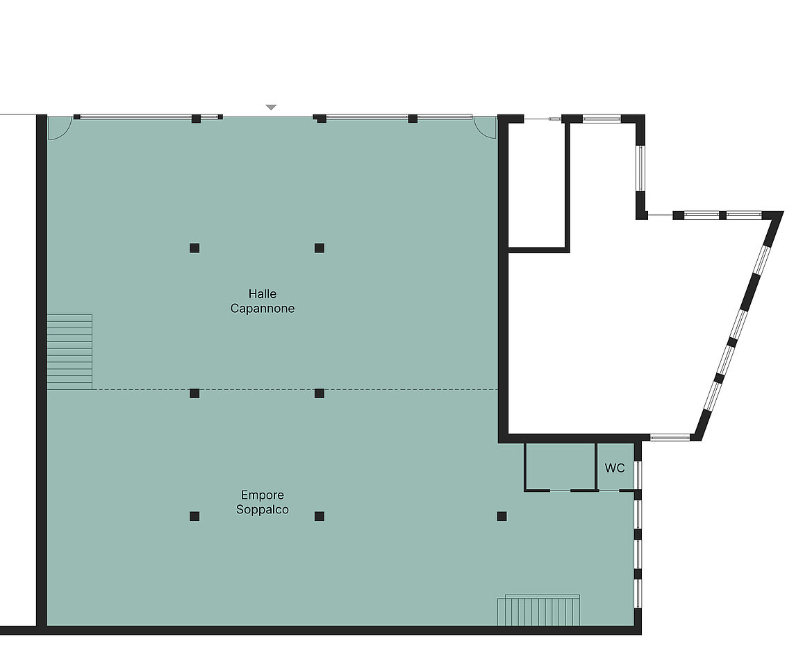
738,00 m²
Objektbeschreibung:
Die Immobilie befindet sich in der Handwerkerzone Vahrn. Dank der verkehrsgünstigen Lage bietet dieses sie die ideale Kombination aus Funktionalität und Flexibilität für Unternehmen. Der vordere Bereich, ca. 233 qm mit einer Raumhöhe von 4,7 m, besticht durch großzügige Verglasungen, dank eines breiten Sektionaltores ist die Halle problemlos zugänglich. Der hintere Bereich des Gebäudes ist durch eine Empore getrennt, im Erdgeschoss das große Lager, ca. 252 qm mit einer Raumhöhe von 2,1 m, und im Obergeschoss befinden sich großzügige Büro- und Besprechungsräume auf einer Fläche von ca. 252 qm mit einer Raumhöhe von 2,4 m.

Kontaktperson

Firma:
Castellanum Srl
Name:
Castellanum Brixen - Bressanone 
Straße:
Via Tratten 7
Ort:
39042 Bressanone
Telefon:
00390472201250
Faxnummer:
00390472201242
E-Mail:
brixen@castellanum.it
Website:
www.castellanum.it
Kontaktperson
Mitteilung senden