Diese Webseite verwendet Cookies, um den bestmöglichen Service zu gewährleisten. Durch die weitere Nutzung dieser Webseite stimmen Sie der Cookie-Nutzung zu.
Weiterlesen.
Akzeptieren
Merkliste
DE
Sprache wählen
Sprache wählen
Deutsch
Italiano
English
Immobilien
Wohnen
Gewerbe
Über uns
Über IMMOREAL.IT
Ihr Immobilienmakler
Immobilie kaufen
Immobilie verkaufen
Service
Südtiroler Maklervereinigung
Immobilien-ABC
Kontakt
Immobilien
Einzelansicht
Geschäftslokal in sehr guter Lage
Bozen
Bozen
3.000 €
Zurück
Merkzettel
Empfehlen
Anfragen
5 Fotos anzeigen
191.00
2
Grundrisse
allgemeine Informationen
Immobiliennr.:
21481
Vermarktungsart:
Miete
Immobilienart:
Einzelhandel (Ladenlokal)
Etage:
1
Gesamtetagen:
1
Fahrstuhl:
Nein
Nettokaltmiete:
3.000,00 €
Flächen und Ausstattung
Gesamtfläche:
191,00 m²
Badezimmer:
2
Zurück
Merkzettel
Empfehlen
Anfragen
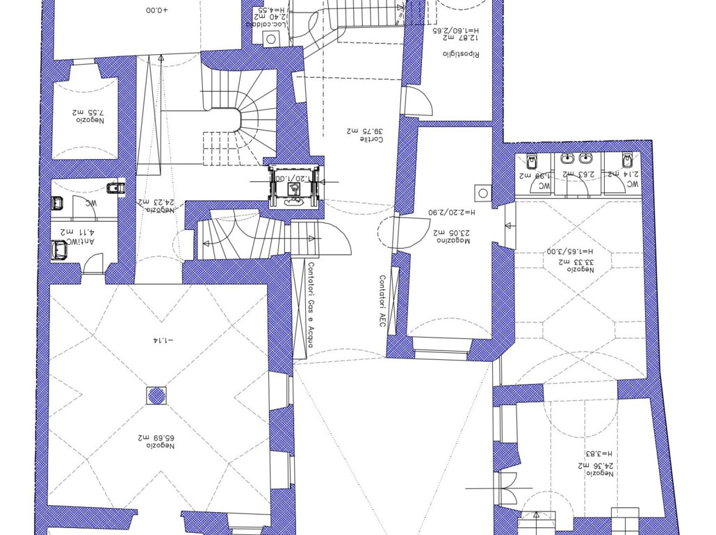
Objektbeschreibung:
Wir vermieten ein schönes Geschäftslokal in der Dr. Streitergasse von Bozen.
Das Erdgeschoss verfügt über eine Nettofläche von 135 m² im Erdgeschoss.
Das Geschäft hat auch 2 Untergeschosse - ideal als Magazin und/oder als zusätzlicher showroom zu verwenden.
Mehr Informationen unter: https://www.ruth-immobilien.com/de/immobile/geschaeftslokal-in-sehr-guter-lage_21481
Ruth Immobilien
Waltherplatz 2 / Piazza Walther
39100 Bozen / Bolzano
Tel. +39 0471 090790
Kontaktperson
Firma:
RUTH Immobilien GmbH
Name:
Ruth Immobilien GmbH - Sitz Bozen
Straße:
Waltherplatz 2
Ort:
39100 Bozen
E-Mail:
info@ruth-immobilien.com
Mitteilung senden
Eine Besichtigung vormerken