Geschäftslokal/Büro mit vier Parkplätzen im Zentrum zu vermieten

BruneckZentrum
1.800 €

allgemeine Informationen

Immobiliennr.:
4652
Vermarktungsart:
Miete
Immobilienart:
Einzelhandel (Ladenlokal)
Fahrstuhl:
Nein
Nettokaltmiete:
1.800,00 €
Provision zzgl. MwSt.:
10% der Jahresmiete

Flächen und Ausstattung

Balkon-, Terrassenfläche:
14,00 m²
Nutzfläche:
89,75 m²
Kellerfläche:
33,82 m²
Verkaufsfläche:
117,79 m²
Zimmer:
2
sep. WC:
1
Stellplätze:
8

Energieeffizienz

Energiequelle:
Fernwärme
Energieklasse:
F
Objektbeschreibung:
Das Geschäftslokal mit 4 Autoabstellplätzen befindet sich in zentraler Lage von Bruneck unweit des neuen NOI Technologieparks, der Gemeinde Bruneck und des Postamtes.

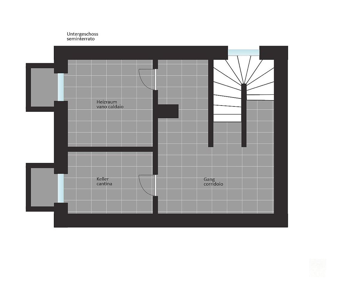
Das Erdgeschoss ist über eine rollstuhlgerechte Rampe erreichbar. Dort befinden sich zwei große Räume, ein Abstellraum und ein WC. Im Untergeschoss, welches über eine interne Treppe zugänglich ist, befindet sich ein Keller und ein Heizraum.

Vor dem Geschäft sind 4 Stellplätze für Kunden und/oder Mitarbeiter vorhanden.

Kontaktperson

Firma:
Immobilien Niederkofler GmbH/SRL
Name:
Dr. Lukas Pörnbacher 
Straße:
Galileo Galilei 6
Ort:
39031 Bruneck
Telefon:
00393425116923
E-Mail:
lukas@immobil-niederkofler.it
Kontaktperson
Mitteilung senden