Exklusives Penthouse mit Eckterrasse und unvergleichlicher Aussicht - provisionsfrei und begehrt!

SchlandersGöflan
555.000 €

allgemeine Informationen

Immobiliennr.:
BR-205_8
Vermarktungsart:
Kauf
Immobilienart:
Wohnung
Etage:
3
Gesamtetagen:
3
Fahrstuhl:
Nein
nur für Ansässige:
Nein
Kaufpreis:
555.000,00 €
Provision zzgl. MwSt.:
0,00%

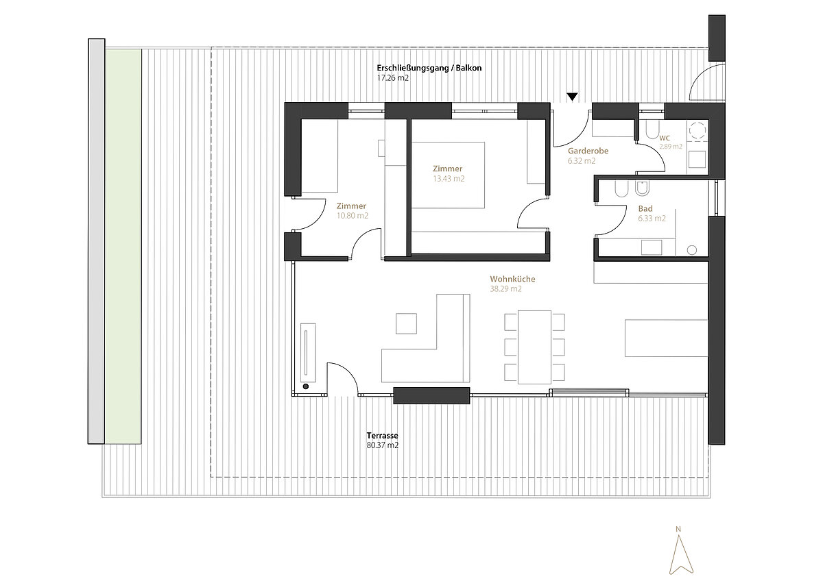
Flächen und Ausstattung

Wohnfläche:
78,06 m²
Balkon-, Terrassenfläche:
97,63 m²
Kellerfläche:
15,10 m²
Verkaufsfläche:
146,44 m²
Zimmer:
3
Schlafzimmer:
2
Badezimmer:
2
Terrassen:
1
Stellplätze:
1

Energieeffizienz

Baujahr:
2025
Zustand:
Erstbezug
Energiequelle:
Luftwp
Heizung:
Fußbodenheizung
Objektbeschreibung:
Exklusives Penthouse mit Eckterrasse und unvergleichlicher Aussicht - provisionsfrei und begehrt!

Dieses Penthouse als Eckwohnung im Neubauprojekt Gevelanum vereint modernes Design, großzügige Räume und eine atemberaubende Aussicht. Mit Süd- und der großzügigen Eckterrasse über Süden und Westen genießen Sie beeindruckende Lichtverhältnisse und einen herrlichen Blick über die Umgebung.

Der weitläufige Wohn- und Essbereich mit offener Küche wird durch bodentiefe Fensterfronten lichtdurchflutet und öffnet sich zur großzügigen Panoramaterrasse, die den Wohnraum harmonisch nach draußen erweitert.

Zwei Schlafzimmer bieten ideale Rückzugsorte, während das stilvolle Badezimmer und ein zusätzliches Gäste-WC den Wohnkomfort abrunden. Hochwertige Materialien, durchdachte Architektur und die privilegierte Lage machen dieses Penthouse zu einem außergewöhnlichen Zuhause für anspruchsvolle Genießer.

Wir freuen uns riesig, Ihnen unser neuestes Projekt vorstellen zu dürfen – ein wunderschöner Neubau in Göflan bei Schlanders, entworfen von der renommierten Architekturgemeinschaft 15. In diesem einzigartigen Gebäude entstehen 9 moderne und hochwertige Wohnungen, die keine Wünsche offenlassen.

Dank exklusiver Zusammenarbeit dürfen wir dieses Projekt provisionsfrei verkaufen – eine Gelegenheit, die nicht oft kommt!

Informieren Sie sich gerne schon jetzt unverbindlich über dieses außergewöhnliche Angebot. Wir stehen Ihnen jederzeit für Fragen und Details zur Verfügung und freuen uns darauf, Ihnen bei der Verwirklichung Ihres Wohntraums zu helfen!

Kontaktperson

Firma:
Immobilien Regensburger GmbH
Name:
Bernd Regensburger 
Straße:
Via Principale 104b
Ort:
39028 Schlanders
Telefon:
0039473730000
E-Mail:
info@immoregensburger.com
Website:
www.immoregensburger.com
Mitteilung senden