Exklusive einfamilienvilla in meran

MeranUntermais
auf Anfrage

allgemeine Informationen

Immobiliennr.:
1743_i
Vermarktungsart:
Kauf
Immobilienart:
Haus
Fahrstuhl:
Nein
nur für Ansässige:
Nein
Provision zzgl. MwSt.:
4% + MwSt/Iva

Flächen und Ausstattung

Wohnfläche:
200,00 m²
Verkaufsfläche:
498,00 m²
Grundstücksfläche:
750,00 m²
Zimmer:
7
Schlafzimmer:
5
Badezimmer:
3
sep. WC:
2
Balkone:
2
Terrassen:
2

Energieeffizienz

Baujahr:
2004
Energiequelle:
Gas
Heizung:
Fußbodenheizung
Energieklasse:
D
Objektbeschreibung:
Diese äußerst sonnige und ruhig gelegene Villa, erbaut in den Jahren 2003-2004, verkörpert modernen Wohnkomfort auf 4 Ebenen. Die Architektur besticht durch große Glaselemente und großzügige Terrassenflächen, die den zeitgemäßen Baustil perfekt unterstreichen. Umgeben von einer autonomen und vielseitig nutzbaren Grünfläche, bietet diese Immobilie eine Oase der Ruhe und Privatsphäre.

Beim Betreten des Untergeschosses erwarten Sie verschiedene praktische Räumlichkeiten, darunter ein WC, ein Abstellraum, zwei Keller und zwei Lagerräume. Zudem gibt es einen Technikraum und eine großzügige Garage, die Platz für bis zu 5 Pkw bietet.

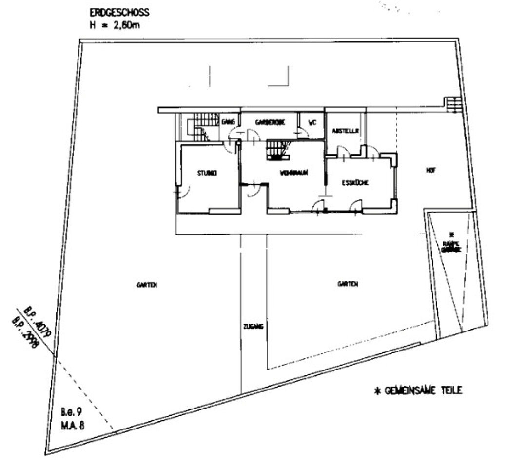
Das Erdgeschoss ist der Mittelpunkt des Wohnbereichs. Hier befinden sich eine moderne Küche, ein großes Wohnzimmer, das ideal für gesellige Abende ist, sowie ein helles Studio. Ein WC und eine geräumige Garderobe runden das Erdgeschoss ab und sorgen für zusätzlichen Komfort.

Im ersten Obergeschoss befinden sich vier helle Zimmer, die alle Zugang zu einem gemeinsamen Balkon haben. Zwei moderne Badezimmer und eine großzügige Terrasse bieten den Bewohnern zusätzlichen Raum zur Entspannung und Erholung.

Das zweite Obergeschoss bietet ein exklusives Refugium mit einem großen Zimmer, einem Ankleidevorraum und einem stilvollen Bad. Die beeindruckende Dachterrasse eröffnet einen herrlichen Ausblick und lädt zum Verweilen ein.

Alle Stockwerke sind durch ein internes Stiegenhaus bequem miteinander verbunden. Der großzügige Garten, der die Villa umgibt, lädt zum Entspannen und Verweilen ein und bietet zahlreiche Gestaltungsmöglichkeiten für Natur- und Gartenliebhaber.

Diese Villa vereint modernen Wohnkomfort mit einer ruhigen, sonnigen Lage und bietet somit eine ideale Umgebung für ein luxuriöses und komfortables Leben.

Vertrauliche Verhandlungen.
Lage:
Willkommen in einer der begehrtesten Wohnlagen Merans, die Ruhe und Sonnenschein in perfekter Harmonie vereint. Diese exklusive Einfamilienvilla befindet sich in einer äußerst ruhigen, verkehrsberuhigten Wohnzone und ist nur etwa 10 Gehminuten vom pulsierenden Stadtzentrum von Meran entfernt. Hier genießen Sie die perfekte Balance zwischen städtischem Komfort und idyllischer Zurückgezogenheit.

Die ruhige Atmosphäre wird durch die Lage des Wohngebäudes noch verstärkt, da es dezent von der Hauptzufahrtsstraße zurückversetzt ist. Dies garantiert nicht nur eine außergewöhnliche Ruhe, sondern auch ein Höchstmaß an Privatsphäre. Von jedem Winkel dieser Villa aus eröffnet sich Ihnen ein freier Ausblick in alle Himmelsrichtungen, sodass Sie das ganze Jahr über eine beeindruckende Anzahl an Sonnenstunden genießen können.

Diese sonnenverwöhnte Lage sorgt dafür, dass die Villa stets in natürlichem Licht erstrahlt und Ihnen eine warme, einladende Atmosphäre bietet. Die umliegende Landschaft bietet ein malerisches Panorama, das zu jeder Jahreszeit fasziniert. Im Frühling und Sommer blühen die Gärten in voller Pracht, während der Herbst eine Palette von goldenen Farben präsentiert und der Winter mit klaren, sonnigen Tagen bezaubert.

Die Nähe zum Stadtzentrum von Meran bedeutet, dass alle Annehmlichkeiten des urbanen Lebens – von erstklassigen Restaurants und Boutiquen bis hin zu kulturellen Veranstaltungen und historischen Sehenswürdigkeiten – nur einen kurzen Spaziergang entfernt sind. Gleichzeitig bietet die Lage eine Oase der Ruhe, die ideal für entspannte Stunden im eigenen Garten oder auf der Terrasse ist.

Erleben Sie die perfekte Symbiose aus städtischer Nähe und friedlicher Abgeschiedenheit in dieser einzigartigen Villa. Eine Wohnlage, die höchsten Ansprüchen gerecht wird und Ihnen das ganze Jahr über ein luxuriöses und komfortables Zuhause bietet.
Ausstattung:
Staubsaugeranlage
Automatisierte (Pos-System) Bewässerungsanlage für den Garten
Alarmanlage mit Überwachugskameras
Anschlüsse für einen Kamin und Solarplatten/Votovoltike
Fußbodenheizung
Kontrollierte Wohnraumlüftung mit Wärmerückgewinnung
Sonstiges:
Alle Informationen und Angaben sind indikativ und können jederzeit Abänderungen unterliegen.

Kontaktperson

Firma:
Real Estate | Valuation | Advisory | Brokerage
Name:
Benedetti RE srl | Christie's International Real Estate 
Straße:
Via Leonardo da Vinci 9
Ort:
39012 Meran
Telefon:
00390473236613
Faxnummer:
00390473231296
E-Mail:
web@irs-benedetti.com
Website:
www.irs-benedetti.com
Mitteilung senden