Exklusive Büroetage unweit vom Waltherplatz - Bozen

BozenBozner Boden
590.000 €

allgemeine Informationen

Immobiliennr.:
BZ13402_3
Vermarktungsart:
Kauf
Immobilienart:
Büro/Praxen (Bürohaus)
Etage:
4
Gesamtetagen:
4
Fahrstuhl:
Ja
Möblierung:
Teil
Kaufpreis:
590.000,00 €

Flächen und Ausstattung

Verkaufsfläche:
210,00 m²

Energieeffizienz

Baujahr:
1990
Energiequelle:
Gas
Objektbeschreibung:
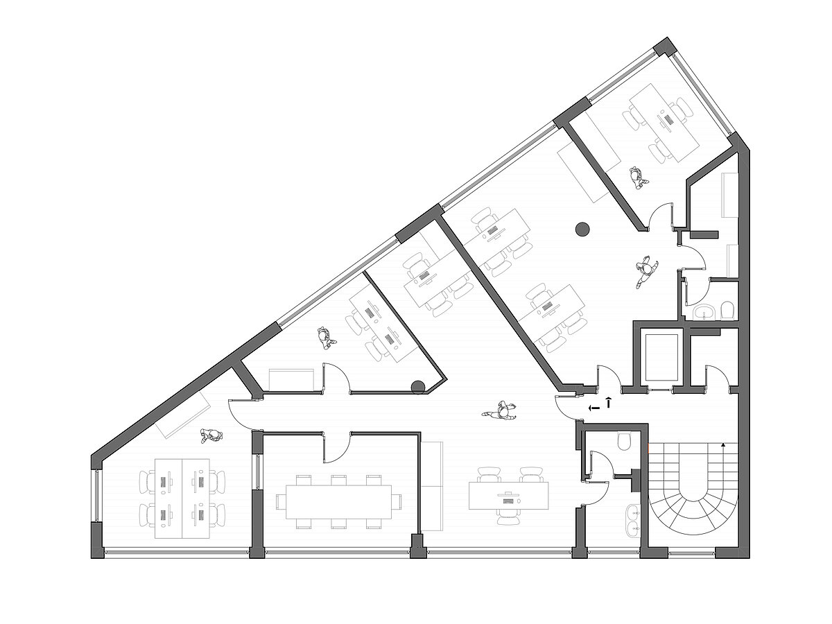
Castellanum bietet ein großzügiges und helles Büro zum Verkauf an, gelegen in strategischer Lage in Bozen, nur wenige Gehminuten vom Waltherplatz entfernt.
Die Immobilie befindet sich im vierten und letzten Stock des Gebäudes, das über einen Aufzug verfügt, und wurde kürzlich renoviert. Dabei wurden Sonnenschutzfolien installiert und architektonische Barrieren beseitigt. Die Räumlichkeiten profitieren den ganzen Tag über von hervorragendem Tageslicht und bieten einen offenen 360-Grad-Blick – ideal für ein angenehmes Arbeiten ohne ständige Nutzung künstlicher Beleuchtung.
Das Büro bildet derzeit eine einzige Einheit, entstanden aus der Zusammenlegung von zwei unabhängigen Büros, die jeweils über einen separaten Zugang verfügen und bereits katastermäßig getrennt sind. Eine Wiederherstellung der ursprünglichen Aufteilung sowie ein separater Erwerb sind daher problemlos möglich. Die Innenräume sind mit modularen Glaswänden ausgestattet, die eine flexible Gestaltung je nach betrieblichen Anforderungen erlauben.
Heizung und Kühlung erfolgen autonom über Ventilokonvektoren.
Im Preis inbegriffen ist ein Doppelstellplatz im Erdgeschoss mit einer Fläche von ca. 25 m².

Kontaktperson

Firma:
Bozen
Straße:
Südtirolerstraße 23
Ort:
39100 Bozen
E-Mail:
bolzano@castellanum.it
Website:
www.castellanum.it
Mitteilung senden