Designerwohnung im Herzen von Kaltern

Kaltern a.d.W.Kaltern a.d.W.
269.000 €

allgemeine Informationen

Immobiliennr.:
HA 113
Vermarktungsart:
Kauf
Immobilienart:
Wohnung
Fahrstuhl:
Nein
Möblierung:
Voll
nur für Ansässige:
Nein
Kaufpreis:
269.000,00 €

Flächen und Ausstattung

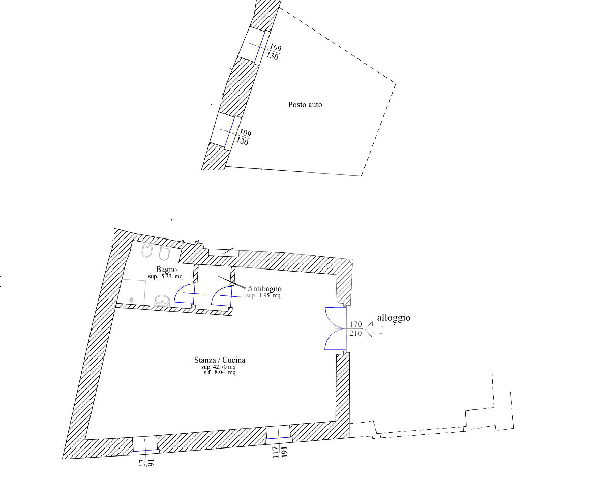
Wohnfläche:
50,00 m²
Kellerfläche:
1,00 m²
Gesamtfläche:
66,00 m²
Zimmer:
1
Badezimmer:
1
Balkone:
1
Stellplätze:
1

Energieeffizienz

Zustand:
Gepflegt
Energiequelle:
Gas
Heizung:
Zentralheizung
Energieklasse:
Legge90G
Objektbeschreibung:

Wir verkaufen dieses einzigartige Schmuckstück im Zentrum vom Kaltern. Bereits der Eingang zum Hof lässt die gesamte Wohnanlage wie ein Objekt in der Toskana erscheinen und man erfreut sich jedes mal sein Eigentum zu betreten. Die Wohnung verfügt über ein Openspaceschlafzimmer mit Wohnküche, ein Badezimmer und einen großen Autoabstellplatz. Der Zustand ist sehr gut, da das kleine Kondominium erst 2006 errichtet wurde und die Wohnung mit liebe fürs Detail im Jahre 2021 hochwertig eingerichtet wurde. Eine private Loggia im Eingangsbereich läd zum entspannen ein.  Mit einer Fläche von 50 m² bietet die Wohnung ausreichend Platz sich auch zu zweit auszubreiten. Die Lage ist ruhig und dennoch zentral, Geschäfte und öffentliche Verkehrsmittel sind in der Nähe. Ideal für jemanden der das Leben in Kaltern genießen möchte. Die Wohnung ist konventioniert.



(Ref. HA 113)
Mitteilung senden