Diese Webseite verwendet Cookies, um den bestmöglichen Service zu gewährleisten. Durch die weitere Nutzung dieser Webseite stimmen Sie der Cookie-Nutzung zu.
Weiterlesen.
Akzeptieren
Merkliste
DE
▾
Sprache wählen
Sprache wählen
Deutsch
Italiano
English
☰
✕
Immobilien
▾
Wohnen
Gewerbe
Über uns
▾
Über IMMOREAL.IT
Ihr Immobilienmakler
Immobilie kaufen
Immobilie verkaufen
Service
▾
Südtiroler Maklervereinigung
Immobilien-ABC
Kontakt
Immobilien
Einzelansicht
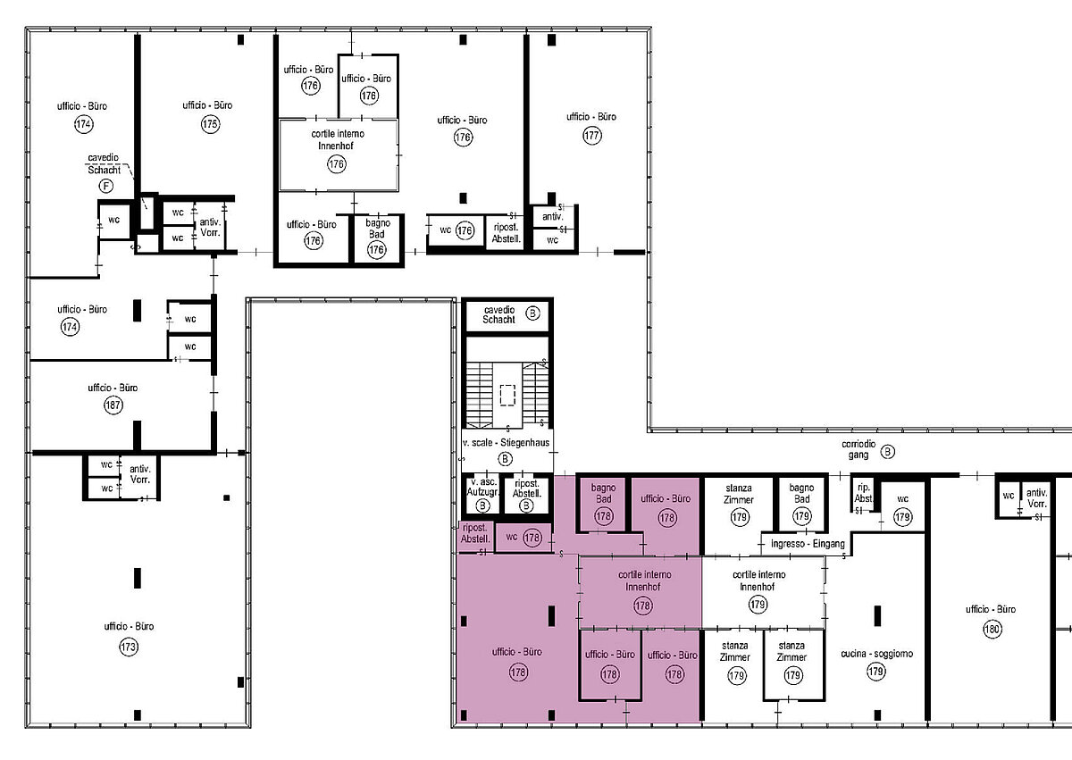
Büroräume im Dachgeschoss
Brixen
Industriezone
1.800 €
Zurück
Merkzettel
Empfehlen
Anfragen
9 Fotos anzeigen
156.00
Grundrisse
allgemeine Informationen
Immobiliennr.:
BX13544_32
Vermarktungsart:
Miete
Immobilienart:
Büro/Praxen
Etage:
4
Gesamtetagen:
4
Fahrstuhl:
Ja
Nettokaltmiete:
1.800,00 €
Flächen und Ausstattung
Nutzfläche:
130,00 m²
Verkaufsfläche:
156,00 m²
sep. WC:
2
Zurück
Merkzettel
Empfehlen
Anfragen
Objektbeschreibung:
Büroräume mit Innenhof im letzten Stock des Gewerbeparks Syncom zu vermieten.
Kontaktperson
Firma:
Castellanum Srl
Name:
Castellanum Brixen - Bressanone
Straße:
Via Tratten 7
Ort:
39042 Bressanone
Telefon:
00390472201250
Faxnummer:
00390472201242
E-Mail:
info@castellanum.it
Website:
www.castellanum.it
Mitteilung senden
Eine Besichtigung vormerken