Büro, Arztpraxis oder Geschäftslokal in Bruneck in Neubau - Nähe Krankenhaus

BruneckBruneck
auf Anfrage

allgemeine Informationen

Immobiliennr.:
320
Vermarktungsart:
Kauf
Immobilienart:
Einzelhandel
Etage:
1
Gesamtetagen:
1
Fahrstuhl:
Ja
Möblierung:
Teil
Provision zzgl. MwSt.:
3% vom Kaufpreis

Flächen und Ausstattung

Nutzfläche:
93,50 m²
Verkaufsfläche:
116,00 m²
Schlafzimmer:
2
Badezimmer:
1
sep. WC:
1
Balkone:
1
Terrassen:
1
Stellplätze:
1

Energieeffizienz

Baujahr:
1996
Zustand:
Erstbezug
Energiequelle:
Fernwärme
Heizung:
Fußbodenheizung
Energieklasse:
A
Objektbeschreibung:
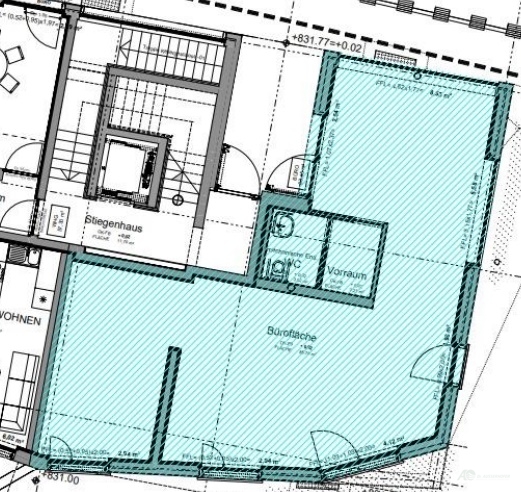
Dieses großzügig geschnittene Lokal befindet sich im Zentrum von Bruneck in optimaler Lage, Klimahaus A, ideal als Büro/Arztpraxis-Studio oder Geschäftslokal.
Die Nettofläche von ca. 95 m² bietet genügend Platz für Ihre individuellen Bedürfnisse. Die Räumlichkeiten können nach eigenen Wünschen und Anforderungen gestaltet und eingeteilt werden, sei es für Büroräume, Behandlungsräume oder Verkaufsflächen.
Das Lokal verfügt über einen eigenen Eingang, große Fensterflächen für viel Tageslicht und ein WC.
Wenn Sie auf der Suche nach einem modernen Büro/Arztpraxis oder Geschäftslokal in Bruneck sind, könnte dieses Lokal die ideale Lösung für Sie sein.
Garagenstellplätze zu je 30.000,00 Euro können gegen Aufpreis dazu erworben werden.
Lage:
Die Räumlichkeiten befinden sich im Zentrum von Bruneck, angrenzend am Park des Kapuzinerklosters. Die exklusive Lage, die hochwertige Bauausführung garantieren höchsten Komfort.
Ausstattung:
Die Wohnung liegt im 1. Obergeschoss und besteht aus:
- 2 Schlafzimmern
- Wohnraum
- Badezimmer
- Küche
- kleinem Abstellraum
- Gang

Weiters gehört zur Wohnung ein nach Süden ausgerichteter Balkon und eine große Terrasse.

Kontaktperson

Firma:
Immobilienagentur Dr. Ausserhofer
Name:
Dr. Karlheinz Ausserhofer 
Telefon:
00390474554666
Faxnummer:
00390474554359
E-Mail:
info@ausserhofer.immo
Website:
www.ausserhofer.immo
Mitteilung senden