Algund/Forst: Freistehendes Wohnhaus im Rohbau zu verkaufen

AlgundForst
auf Anfrage

allgemeine Informationen

Immobiliennr.:
558
Vermarktungsart:
Kauf
Immobilienart:
Haus
Fahrstuhl:
Nein
nur für Ansässige:
Nein

Flächen und Ausstattung

Grundstücksfläche:
957,00 m²
Objektbeschreibung:
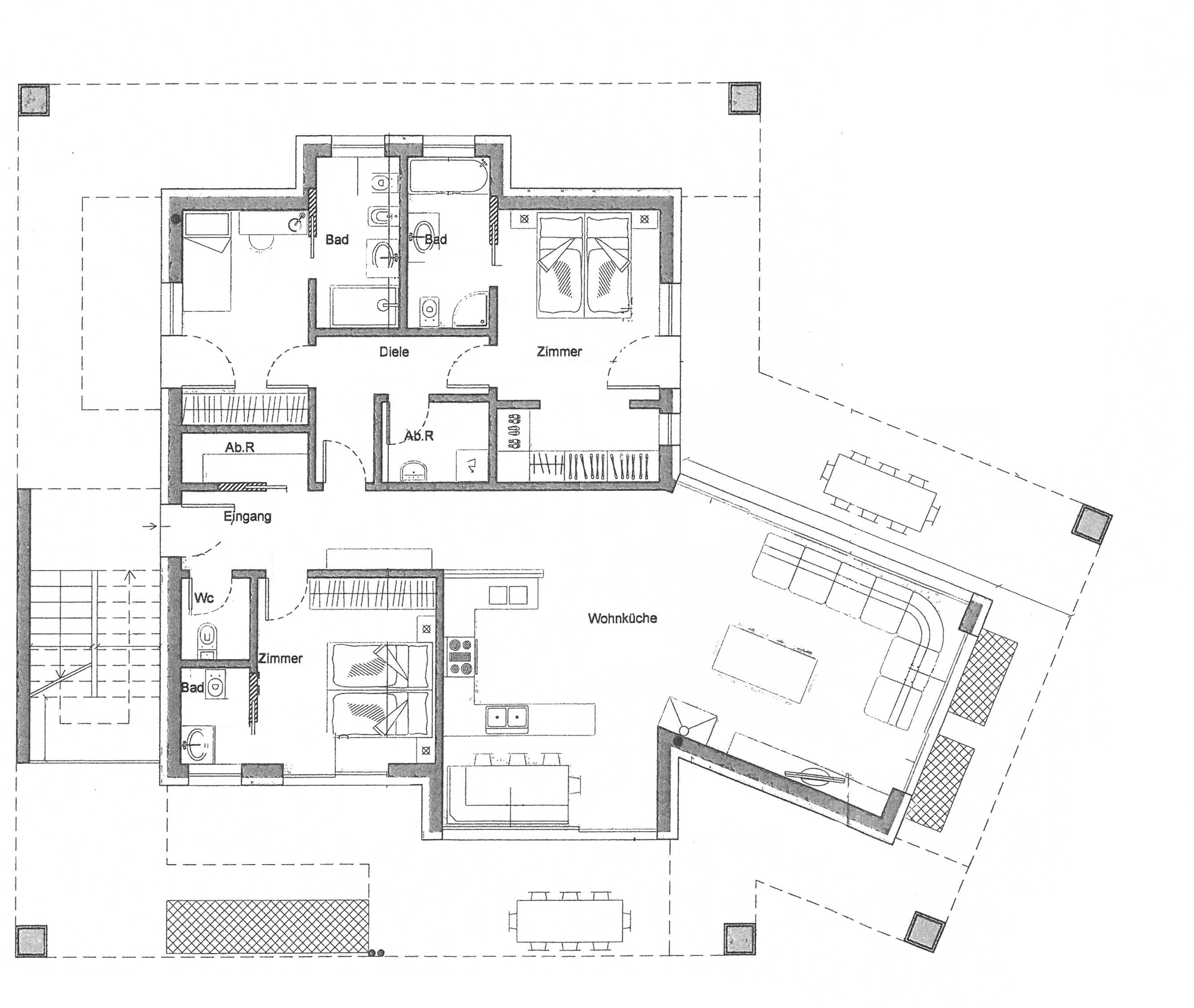
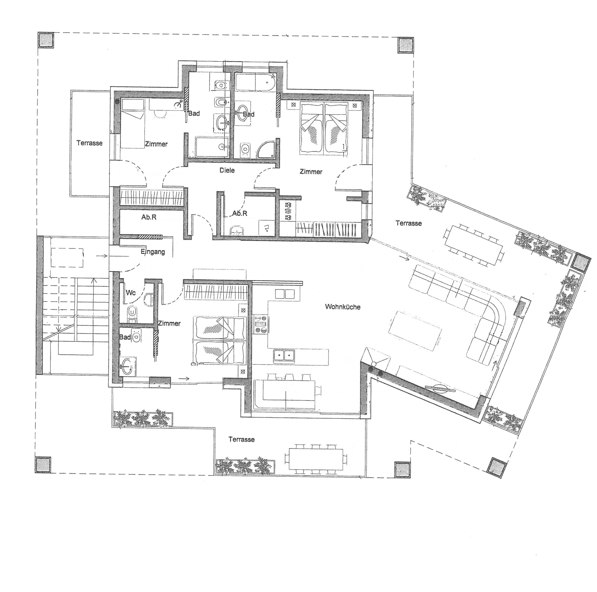
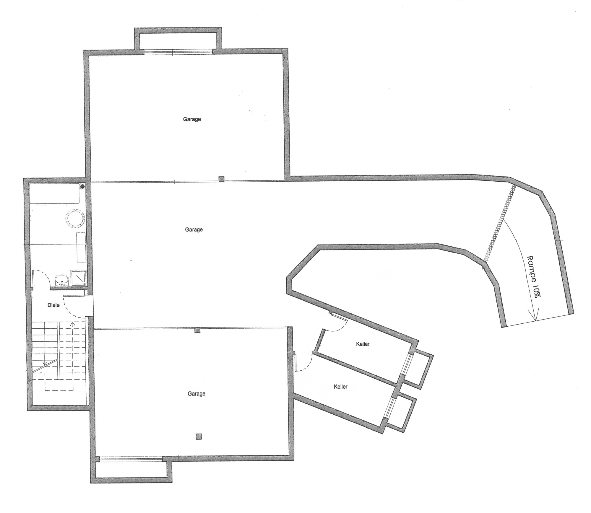
Verkauft wird ein Wohnhaus im Rohbau mit 2 Wohneinheiten und einer großen Tiefgarage.

Das Wohnhaus liegt in der Gemeinde Algund, Fraktion Forst, mitten im landwirtschaftlichen Grün. Die gesamte Grundfläche beträgt 957 m², sodass ums Haus ein großzügiger Park angelegt werden kann.

Die Zufahrt ist LKW tauglich und in wenigen Minuten kann man das Stadtzentrum Meran erreichen. Auch ein Fahrradweg über die Etsch garantiert eine schnelle und sichere Anbindung an das Dorf Algund.

Die Immobilie ist wie folgt aufgeteilt:
- Kellergeschoss: Große Tiefgarage, 2 Kellerabteile

- Erdgeschoss: Wohneinheit bestehend aus Eingangsbereich, Wohnküche, Tages-WC, Diele, 2 Abstellräume und 3 Schlafzimmer mit 3 Bädern und Terrassen.

- Obergeschoss: Wohneinheit bestehend aus Eingangsbereich, Wohnküche, Tages-WC, Diele, 2 Abstellräume, 3 Schlafzimmer mit 3 Bädern und Terrassen.


Die Rohbauarbeiten samt Außenputz sind fertiggestellt. Das Dach ist isoliert.
Sonstiges:
Das Gebäude ist nicht konventioniert und kann frei bewohnt oder vermietet werden, sei es als Hauptwohnsitz, aber auch als Ferienwohnung.

Kontaktperson

Firma:
Wellenzohn Immobilien des Wellenzohn Bernhard & Co. KG
Straße:
Göflanerstrasse 33
Ort:
39028 Schlanders
Telefon:
00390473620300
E-Mail:
info@wellenzohn.eu
Website:
www.wellenzohn.eu
Mitteilung senden