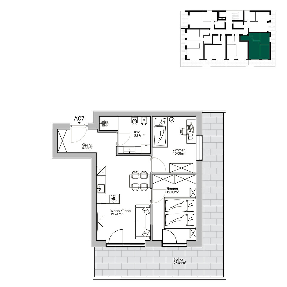
A07 - Dreizimmerwohnung mit großem Balkon

Sand in TaufersDorfzentrum
auf Anfrage

allgemeine Informationen

Immobiliennr.:
BK13459_7
Vermarktungsart:
Kauf
Immobilienart:
Wohnung
Etage:
1
Gesamtetagen:
1
Fahrstuhl:
Ja
nur für Ansässige:
Nein
Provision zzgl. MwSt.:
3%

Flächen und Ausstattung

Wohnfläche:
52,84 m²
Balkon-, Terrassenfläche:
27,64 m²
Kellerfläche:
3,57 m²
Verkaufsfläche:
83,58 m²
Zimmer:
3
Schlafzimmer:
2
Badezimmer:
1
Balkone:
1

Energieeffizienz

Baujahr:
2026
Energiequelle:
Fernwärme
Heizung:
Fußbodenheizung
Energieklasse:
A+
Objektbeschreibung:
Dreizimmerwohnung im 1. Obergeschoss mit Wohnküche, zwei Schlafzimmern, Bad, Balkon und Keller. Die Wohnanlage Nora bietet moderne Wohnlösungen in einer sonnigen Lage in Sand in Taufers. Es entstehen 13 Wohnungen in unterschiedlichen Größen mit durchdachten Raumaufteilungen, welche mit hochwertigen Materialien realisiert werden. Entsprechend den Klimahaus A-Nature Richtlinien wird das Gebäude energieeffizient errichtet. Die Wohnanlage ist mit einer Tiefgarage ausgestattet, die den Bewohnern komfortable Parkmöglichkeiten bietet. Die zentrale Lage in Sand in Taufers ermöglicht eine gute Anbindung an öffentliche Verkehrsmittel sowie eine schnelle Erreichbarkeit von Einkaufsmöglichkeiten, Schulen und Freizeiteinrichtungen.

Kontaktperson

Firma:
Castellanum Srl
Name:
Castellanum Bruneck - Brunico 
Straße:
Via Michael Pacher 5
Ort:
39031 Brunico
Telefon:
00390474862621
E-Mail:
bruneck@castellanum.it
Website:
www.castellanum.it
Mitteilung senden