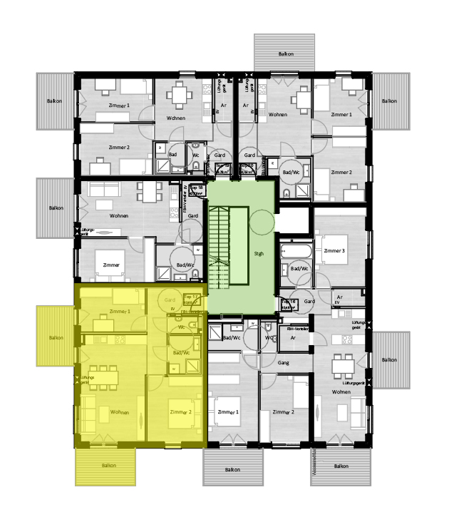
A 17 - Dreizimmerwohnung mit zwei Balkonen

InnsbruckTirol
576.400 €

allgemeine Informationen

Immobiliennr.:
13353_17
Vermarktungsart:
Kauf
Immobilienart:
Wohnung
Etage:
3
Gesamtetagen:
3
Fahrstuhl:
Ja
nur für Ansässige:
Nein
Kaufpreis:
576.400,00 €

Flächen und Ausstattung

Wohnfläche:
63,65 m²
Balkon-, Terrassenfläche:
15,40 m²
Kellerfläche:
3,80 m²
Zimmer:
3
Schlafzimmer:
2
Badezimmer:
2
Balkone:
2

Energieeffizienz

Baujahr:
2023
Energiequelle:
Fernwärme
Heizung:
Fußbodenheizung
Energieklasse:
A+
Objektbeschreibung:
Diese Dreizimmerwohnung besteht aus einer geräumigen Wohnküche, zwei Schlafzimmern und zwei Bädern. Zwei Balkone vervollständigen die Wohnung. Ein Keller im Untergeschoss ist ebenfalls im Preis inbegriffen. Stellplätze in der Tiefgarage sind ab 25.680 € erhältlich. Die angegebenen Preise sind für Anleger und verstehen sich zuzüglich Umsatzsteuer. Preise für Eigennutzer auf Anfrage.

Individualität und Komfort in begehrter Lage von Innsbruck.
Eingebettet zwischen Walderkammweg und Haller Straße entstehen im Osten von Innsbruck 24 qualitäts- und geschmackvolle Wohnungen. Diese bestechen durch funktionale Grundrisse mit Wohnungsgrößen zwischen ca. 32 m² und 109 m², gepaart mit höchster Wohnqualität in urbaner Lage. Zudem verfügen alle Einheiten über Freiflächen, die den Wohnraum gekonnt nach außen erweitern. Die hauseigene Tiefgarage bietet ausreichend Platz und wird mit Vorbereitung für E-Ladestationen ausgeführt. Die direkte Nähe zu Kindergarten und Volksschule bietet beste Voraussetzungen für Familien, die ausgezeichnete Infrastruktur verbindet Innenstadt, Naherholung und Freizeitgestaltung - keine andere Stadt vereint Natur und urbanes Leben so gekonnt miteinander wie Innsbruck.

Hochwertige Materialien wie Echtholz Parkettböden, Feinsteinzeug und Markenprodukte im Sanitärbereich, gehobene Ausstattung mit Raffstores, bodengleichen Duschen und Home-Delivery-Station kombiniert mit einem nachhaltigen Konzept dank Fernwärme, Komfort-Wohnraumlüftung und Photovoltaik-Anlage - das sind nur einige Highlights des neuen Projektes.

Kontaktperson

Firma:
Castellanum Srl
Name:
Castellanum Brixen - Bressanone 
Straße:
Via Tratten 7
Ort:
39042 Bressanone
Telefon:
00390472201250
Faxnummer:
00390472201242
E-Mail:
info@castellanum.it
Website:
www.castellanum.it
Mitteilung senden