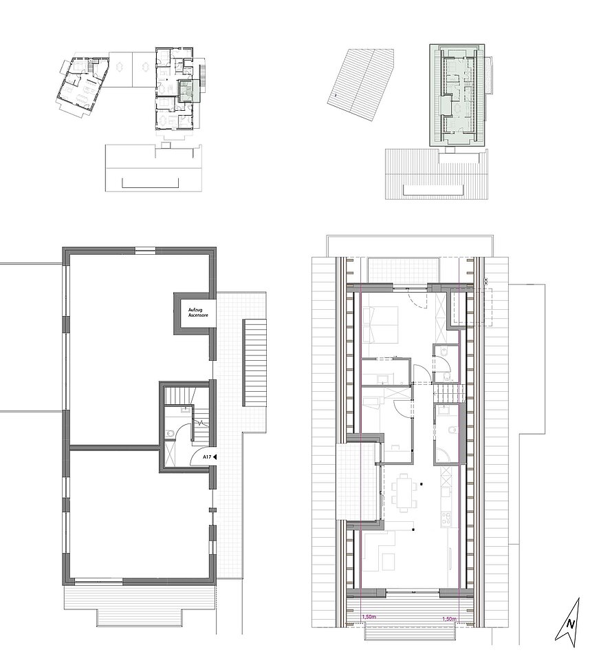
A17 - Trilocale con terrazza

DobbiacoValle San Silvestro
866.000 €

informazioni generali

Riferimento:
13262_17
Contratto:
acquisto
Proprietà:
appartamento
Piano:
3
Totale piani:
3
ascensore:
solo per residenti:
no
Prezzo di acquisto:
866.000,00 €
Provvigione più IVA:
3%

Superfici e caratteristiche

Superficie abitabile:
80,10 m²
Superficie balconi/terrazze:
29,60 m²
Superficie cantina:
5,00 m²
Superficie di vendita:
115,93 m²
Stanze:
3
Camere da letto:
2
Bagni:
2
Balconi:
1
Terrazze:
1
Posti auto:
1

Efficenza energetica

anno di costruzione:
2023
fonte di energia:
pompa di calore aria
Riscaldamento:
riscaldamento centralizzato riscaldamento a pavimento
classe energetica:
A+
Descrizione:
Trilocale composto da due camere da letto, due bagni, ampia cucina/soggiorno e terrazza.
Nel cuore del centro storico di Valle San Silvestro sono state costruite 17 unità abitative. La costruzione è stata completata nell'estate del 2025.
Il committente attribuisce grande importanza alla sostenibilità e ha quindi optato per lo standard di casa clima A Nature. In questo modo si otterrà una casa ecologica ed efficiente dal punto di vista energetico. Le unità abitative sono orientate in modo ottimale e offrono una vista mozzafiato sulle Dolomiti verso Dobbiaco.
Sono disponibili ampi garage per i veicoli, acquistabili separatamente. Gli appartamenti sono arredati secondo un elevato standard costruttivo, garantendo il massimo comfort. Garage disponibile separatamente (+ 32.000€).

Persona di contatto

Agenzia:
Castellanum Srl
Nome:
Castellanum Toblach - Dobbiaco 
Via:
Via San Giovanni 2A
Luogo:
39034 Dobbiaco
Telefono:
00390474976261
Mail:
toblach@castellanum.it
Website:
www.castellanum.it
Kontaktperson
Contatta l'agente