Warehouse in shell construction with parking spaces

Bressanoneindustrial area
on request

general

object number external:
12954
marketing method:
purchase
property:
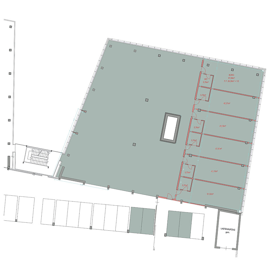
Warehouse (storage)
floor:
4
amount of floors:
4
elevator:
yes

Areas and amenities

Floor space:
893,40 m²
Sales space:
1.072,00 m²
Description:
The Warehouse with communal goods elevator on the 4th floor are currently subdivided, but can be completely reopened. The warehouse also includes four parking spaces.

Contact person

Company:
Castellanum Srl
Name:
Castellanum Brixen - Bressanone 
Street:
Via Tratten 7
Place:
39042 Bressanone
Phone:
00390472201250
Fax number:
00390472201242
Email:
brixen@castellanum.it
Website:
www.castellanum.it
Kontaktperson
Direct message