Unique farmhouse with spacious green area in Stilfes

StilvesStilves
on request

general

object number external:
1063
marketing method:
purchase
property:
House
elevator:
no
reserved for residents:
no

Areas and amenities

living space:
210,93 m²
garden space:
308,35 m²
cellar space:
23,40 m²
Total size of site:
360,00 m²
Number of Rooms:
10
Number of bedrooms:
7
Number of bathrooms:
4
number of parking spaces:
5

Energetic efficiency

construction year:
1958
Condition:
part / full renovated
energy source:
district heating
heating:
Central heating
Description:
Unique farmhouse with spacious green area in Stilfes

GOOD TO KNOW: Completely renovated farmhouse with charming veranda in a prime location, 3 floors and barn
ROOM DIVISION: 7 bedrooms, 2 bathrooms with windows and 2 guest WCs
Ground floor: entrance hall, beautiful rustic living room with farmhouse stove, spacious kitchen, 3 bedrooms, bathroom, guest toilet.
First floor: 4 spacious rooms, meditation room, bathroom, guest toilet, south-facing terrace.
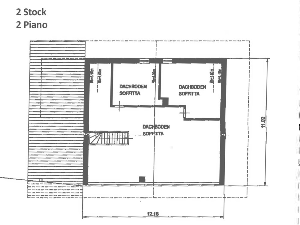
Second floor: convertible attic.
PLUS: 5 covered parking spaces, spacious green area, wonderful veranda, spacious basement areas, workshop, and spacious barn with expansion potential
Location:
The farmhouse is located in a quiet, sunny location in Stilfes, a hamlet in the municipality of Freienfeld. The surrounding area is rural and offers beautiful views of the surrounding mountain landscape. Sterzing and Franzensfeste are just a few minutes away, where all amenities such as shopping, schools, and public transportation are available. The proximity to the Brenner motorway and the Freienfeld train station ensures good connections. Ideal for nature lovers who appreciate peace and quiet and easy accessibility.

Contact person

Company:
Immobilpoint
Name:
Thomas Baumann 
Street:
Hartwiggasse 9
Place:
39042 Brixen
Phone:
00390472834380
Email:
thomas.baumann@immobilpoint.com
Website:
www.immobilpoint.com
Kontaktperson
Direct message