Shop in the heart of the old town

Bressanonetown center
2.000 €

general

object number external:
BX13752
marketing method:
rent/lease
property:
retail trade (commercial property)
elevator:
no
net rent:
2.000,00 €

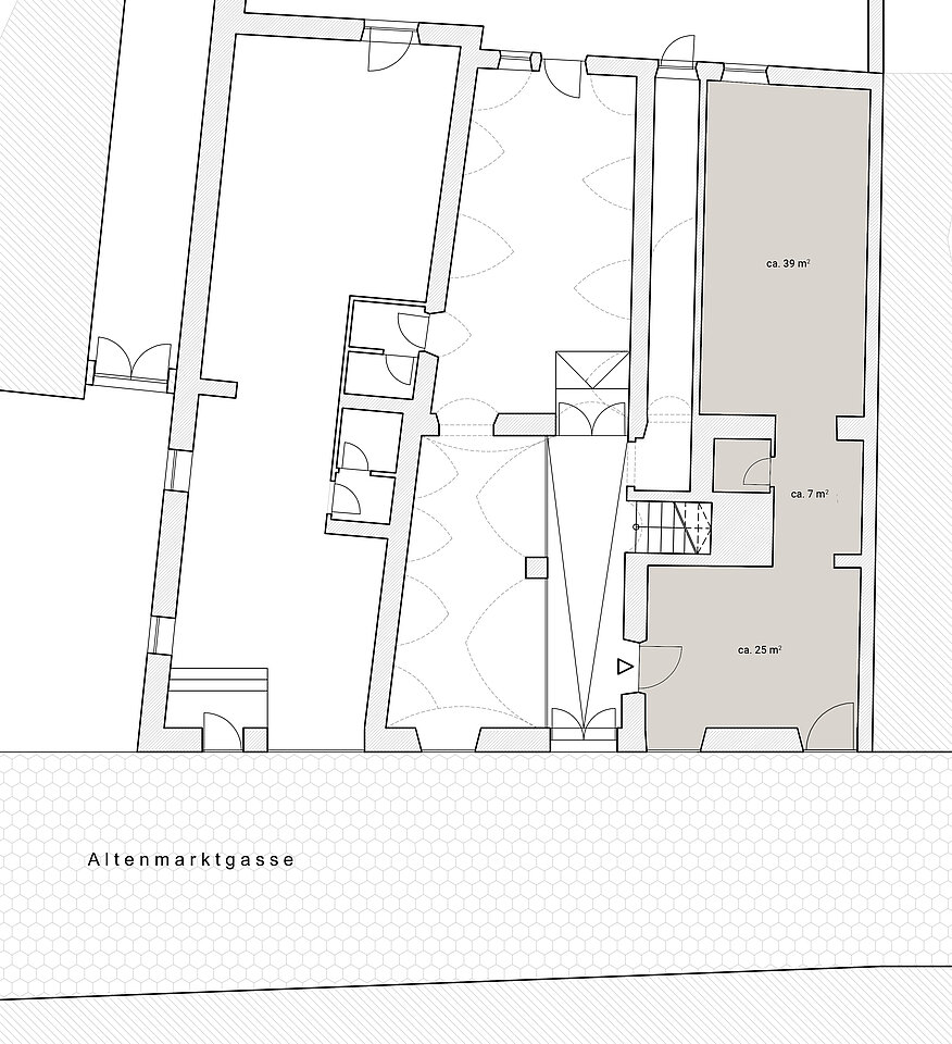
Areas and amenities

Floor space:
71,00 m²
Description:
In the heart of Bressanone, a well-established business including all interior and a valid lease agreement is available for sale. The commercial space is highly visible and, if required, a separate storage room of approx. 17 sqm is available.

Contact person

Company:
Castellanum Srl
Name:
Castellanum Brixen - Bressanone 
Street:
Via Tratten 7
Place:
39042 Bressanone
Phone:
00390472201250
Fax number:
00390472201242
Email:
brixen@castellanum.it
Website:
www.castellanum.it
Kontaktperson
Direct message