New 4-room-flat on two floors - W11

BraiesBraies di Fuori
on request

general

object number external:
3919
marketing method:
purchase
property:
flat
floor:
3
amount of floors:
3
elevator:
yes
reserved for residents:
yes
broker's fee plus VAT:
3%

Areas and amenities

living space:
101,19 m²
balconies/terrace space:
39,23 m²
cellar space:
6,00 m²
Sales space:
147,66 m²
Number of Rooms:
4
Number of bedrooms:
3
Number of bathrooms:
2
number of balconies:
3
number of parking spaces:
2

Energetic efficiency

construction year:
2023
energy source:
pellet
heating:
underfloor heating
energy class:
A
energy consumption value:
30.00 kWh/(m²*a)
Description:
4-room duplex-flat in the new construction project "Küblerhof" for sale - W11.

In this project, a traditional farmhouse in a sunny location in Braies was demolished and rebuilt with a modern interpretation. The house is now divided into 12 residential units. The facade is made of old wood from the former farm.
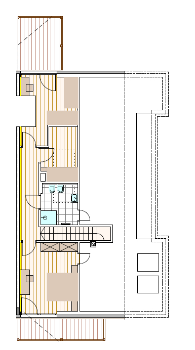
This duplex apartment is located on the second floor + attic and consists of a living room with open kitchen, three bedrooms , two bathrooms and an attic. Furthermore the flat is equipped with three balconies in total. The price also includes a cellar.
Garage and car parking spaces can be purchased for an additional charge. The apartment is furnished.

This property can also be used as second home.
Location:
BRAIES:
The Valle di Braies is a side valley of the Val Pusteria that stretches towards south and comprises a territory between 1,120 m and 3,146 m asl. The villages of S. Vito, Braies di Fuori, Braies di Dentro and Ferrara di Braies make part of the valley that has got about 630 inhabitants and provides two main attractions for visitors, that is to say the Prato Piazza and the Lago di Braies lake.

As Lake Braies is one of the most beautiful mountain lakes of South Tyrol, above all in summertime it attracts a large number of visitors. Also the Prato Piazza, a high altitude terrace at 2,000 m, is a very popular excursion destination in the Valle di Braies. This is where also less experienced mountaineers can make easy walks and promenades, inhaling the refreshing mountain air.

Contact person

Company:
Immobilien Niederkofler GmbH
Name:
André Benedict Niederkofler 
Street:
Galileo Galilei 6
Place:
39031 Bruneck
Phone:
00390474410400
Email:
info@immobil-niederkofler.it
Website:
www.immobil-niederkofler.it
Direct message