Modern design duplex penthouse in top location

MeranoMerano
on request

general

object number external:
2086_i
marketing method:
purchase
property:
flat
floor:
2
amount of floors:
2
elevator:
yes
reserved for residents:
no
broker's fee plus VAT:
4% + VAT

Areas and amenities

living space:
167,35 m²
Sales space:
220,00 m²
Number of Rooms:
4
Number of bedrooms:
3
Number of bathrooms:
2
number of balconies:
1
number of terraces:
1

Energetic efficiency

construction year:
1972
Condition:
part / full renovated
energy source:
district heating
energy class:
C
Description:
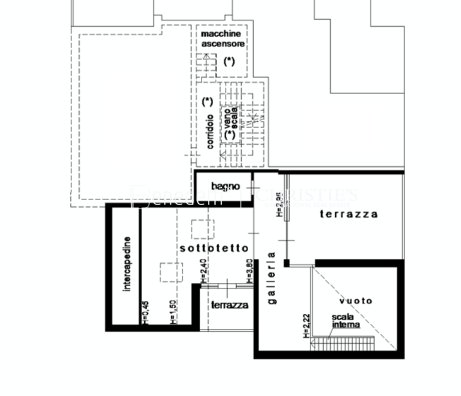
This renovated duplex apartment combines modern living comfort with a touch of entertainment charm and offers interior lovers great design potential. Renovated in 2018 & 2026, the apartment extends over two floors and impresses with its well thought-out room layout and light-flooded living areas.

Upon entering the apartment on the second floor, you are greeted by an inviting entrance area that flows seamlessly into the modern living areas. Here, cooking, dining and living merge into a harmonious living space. The spacious living room with adjoining dining area invites you to enjoy convivial evenings and opens out onto a sunny balcony with a view, providing the perfect place for relaxing hours outdoors. The furnished kitchen is right next door. Two cozy bedrooms offer enough space for restful nights, while the modern bathroom with wellness shower, bathtub and daylight window is a private oasis of well-being. A practical storage room rounds off the space on this floor.

A new glass staircase takes you to the upper floor and the last floor, where a bright anteroom leads to another room that can be used flexibly and is ideal as a bedroom or cozy living room. From here, you can access a smaller balcony with a north-west orientation as well as the spacious sun terrace with wonderful south/east views - a highlight for anyone who loves outdoor living. A further modern bathroom with skylight provides additional comfort.

This attractive offer is rounded off by a cellar (6sqm) & a garage (16sqm) in the basement, which provides convenient parking. This apartment is a real gem for anyone who wants to combine urban living with stylish elegance.
Location:
The apartment is located in the highly sought-after St. Franziskusstraße in Merano, a quiet yet central area. This residential neighborhood boasts excellent infrastructure, with shops for daily needs, schools, cafés, and restaurants all within close proximity. The charming old town of Merano is easily accessible, offering picturesque alleyways, boutique shopping, and a variety of cultural attractions. With convenient access to public transportation and nearby green recreational areas, this location perfectly balances urban vibrancy with a high quality of life close to nature.
Equipment description:
Electric shutters with remote control provide additional comfort.

The bathrooms have been completely renovated, including the plumbing.

A new video doorbell system has been installed, which can also be controlled via Wi-Fi using a smartphone.

The furnishings were developed by us as a proposal, tailored to the conditions of the premises. Of course, the design can also be individually adapted and implemented as an alternative.
Other information:
All information given here is indicative and may be subject to change and/or recalculation.

Contact person

Company:
Benedetti Real Service | Christie's International Real Estate
Name:
Sophia Biasi 
Street:
Via Leonardo da Vinci Strasse 9
Place:
39012 Merano
Phone:
00390473236613
Fax number:
00390473231296
Email:
bs@irs-benedetti.com
Website:
www.irs-benedetti.com
Direct message