Diese Webseite verwendet Cookies, um den bestmöglichen Service zu gewährleisten. Durch die weitere Nutzung dieser Webseite stimmen Sie der Cookie-Nutzung zu.
Weiterlesen.
Akzeptieren
Favorites
EN
choose language
choose language
Deutsch
Italiano
English
listings
residential
commercial
about
immoreal.it
your broker
buy property
sell property
service
Südtiroler Maklervereinigung
good to know
contact us
listings
singleview
Glorenza: Modern 2-room apartment with terrace for sale
Glorenza
Glorenza
270.000 €
Back
bookmark
recommend
Request
show 5 images
57.00
1
1
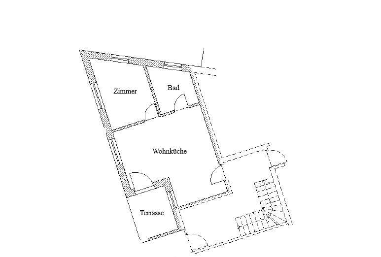
Floor plan
general
object number external:
594
marketing method:
purchase
property:
flat
elevator:
no
reserved for residents:
no
purchase price:
270.000,00 €
Areas and amenities
living space:
57,00 m²
Number of bedrooms:
1
Number of bathrooms:
1
number of terraces:
1
number of parking spaces:
1
Energetic efficiency
Condition:
as new
energy source:
district heating
heating:
underfloor heating
Back
bookmark
recommend
Request
Description:
A beautiful 2-room apartment in a central location in Glorenza is for sale.
The apartment has a gross living area of approx. 57 m² and consists of:
- eat-in kitchen
- bedroom
- bathroom
- terrace
The property also includes a cellar and a parking space in the basement.
Location:
All important facilities such as stores, schools and banks are within easy walking distance.
Equipment description:
The apartment is partially furnished.
The residential building is heated by district heating, the heat exchange in the apartment takes place by means of underfloor heating.
Other information:
The apartment is conventioned and therefore cannot be used as a vacation or second home.
The property is a listed building.
Contact person
Company:
Wellenzohn Immobilien des Wellenzohn Bernhard & Co. KG
Street:
Göflanerstrasse 33
Place:
39028 Schlanders
Phone:
00390473620300
Email:
info@wellenzohn.eu
Website:
www.wellenzohn.eu
Direct message
Request local inspection