Commercial hall in a strategic location

Varnaindustrial area
1.000.000 €

general

object number external:
BX13699
marketing method:
purchase
property:
Warehouse
elevator:
no
purchase price:
1.000.000,00 €
broker's fee plus VAT:
3%

Areas and amenities

Floor space:
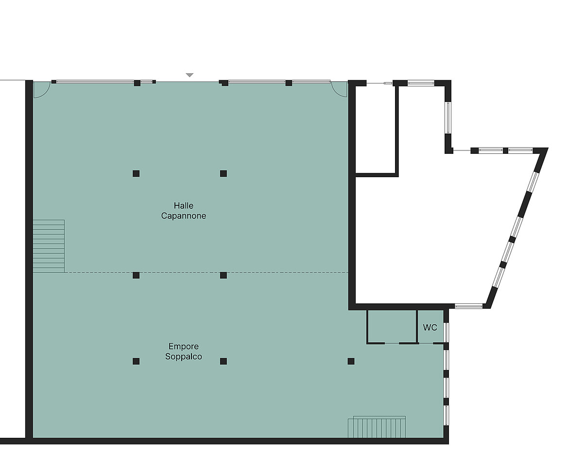
738,00 m²
Description:
The property is located in the Varna craftsmen‘s zone. Thanks to its convenient location, it offers the ideal combination of functionality and flexibility for companies. The front area, approx. 233 sqm with a room height of 4.7 m, impresses with generous glazing, and the hall is easily accessible thanks to a wide sectional door. The rear area of the building is separated by a gallery, on the first floor the large warehouse, approx. 252 sqm with a room height of 2.1 m, and on the upper floor there are spacious office and meeting rooms on an area of approx. 252 sqm with a room height of 2.4 m. The hall is leased and offers a return of 4.8%.

Contact person

Company:
Castellanum Srl
Name:
Castellanum Brixen - Bressanone 
Street:
Via Tratten 7
Place:
39042 Bressanone
Phone:
00390472201250
Fax number:
00390472201242
Email:
info@castellanum.it
Website:
www.castellanum.it
Direct message