Diese Webseite verwendet Cookies, um den bestmöglichen Service zu gewährleisten. Durch die weitere Nutzung dieser Webseite stimmen Sie der Cookie-Nutzung zu.
Weiterlesen.
Akzeptieren
Favorites
EN
choose language
choose language
Deutsch
Italiano
English
listings
residential
commercial
about
immoreal.it
your broker
buy property
sell property
service
Südtiroler Maklervereinigung
good to know
contact us
listings
singleview
Business premises in the city center
Bressanone
town center
650.000 €
Back
bookmark
recommend
Request
show 3 images
80.74
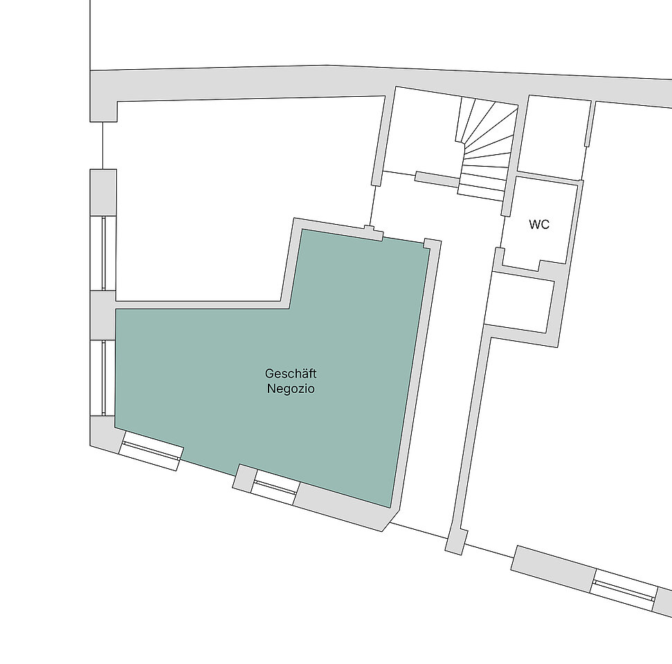
Floor plan
general
object number external:
12073
marketing method:
purchase
property:
retail trade (commercial property)
elevator:
no
purchase price:
650.000,00 €
Areas and amenities
Floor space:
62,11 m²
Sales space:
80,74 m²
Number of sep. bathrooms:
1
Energetic efficiency
energy class:
G
Back
bookmark
recommend
Request
Description:
Small rented business premises with office in the city center, in a listed town house. Yield: 3,88 %.
Contact person
Company:
Castellanum Srl
Name:
Castellanum Brixen - Bressanone
Street:
Via Tratten 7
Place:
39042 Bressanone
Phone:
00390472201250
Fax number:
00390472201242
Email:
brixen@castellanum.it
Website:
www.castellanum.it
Direct message
Request local inspection