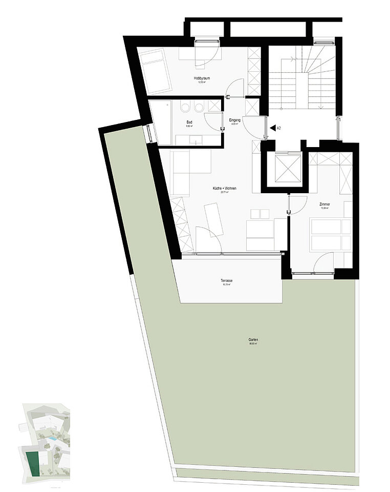
A2 - Two-room apartment with hobby room and garden

ChienesSan Sigismondo
318.000 €

general

object number external:
BK13410_A2
marketing method:
purchase
property:
flat
elevator:
yes
reserved for residents:
no
purchase price:
318.000,00 €
broker's fee plus VAT:
3%

Areas and amenities

living space:
61,12 m²
balconies/terrace space:
10,78 m²
garden space:
88,83 m²
cellar space:
11,38 m²
Sales space:
97,14 m²
Number of Rooms:
2
Number of bedrooms:
1
Number of bathrooms:
1
number of terraces:
1
number of parking spaces:
1

Energetic efficiency

construction year:
2025
energy source:
pellet
heating:
underfloor heating
energy class:
A+
Description:
This two-room apartment with hobby room in the new construction project Gisser in San Sigismondo offers a net living area of around 61 square meters of space to make your dream home a reality.
The apartment on the ground floor comprises a bright living-kitchen area, a cozy bedroom, a hobby room with additional sleeping facilities and a bathroom with window and bathtub. The unit is rounded off with a south-facing terrace and private garden.
There is also a private cellar, which is easily accessible from all floors via the elevator.
Garage parking spaces in the basement can be purchased separately as an option (garage box: 35,000.00 euros; double garage box: 58,000.00 euros).

This unit cannot be used as vacation accommodation.

Contact person

Company:
Castellanum Srl
Name:
Castellanum Bruneck - Brunico 
Street:
Via Michael Pacher 5
Place:
39031 Brunico
Phone:
00390474862621
Email:
bruneck@castellanum.it
Website:
www.castellanum.it
Direct message